lemon-mirror:
Home >> Saturn >> 2002 >> VUE L4-2.2L VIN D >> Repair and Diagnosis >> Diagrams >> Electrical Diagrams >> Powertrain Management >> Computers and Control Systems >> Body Control Module

Body Control Module

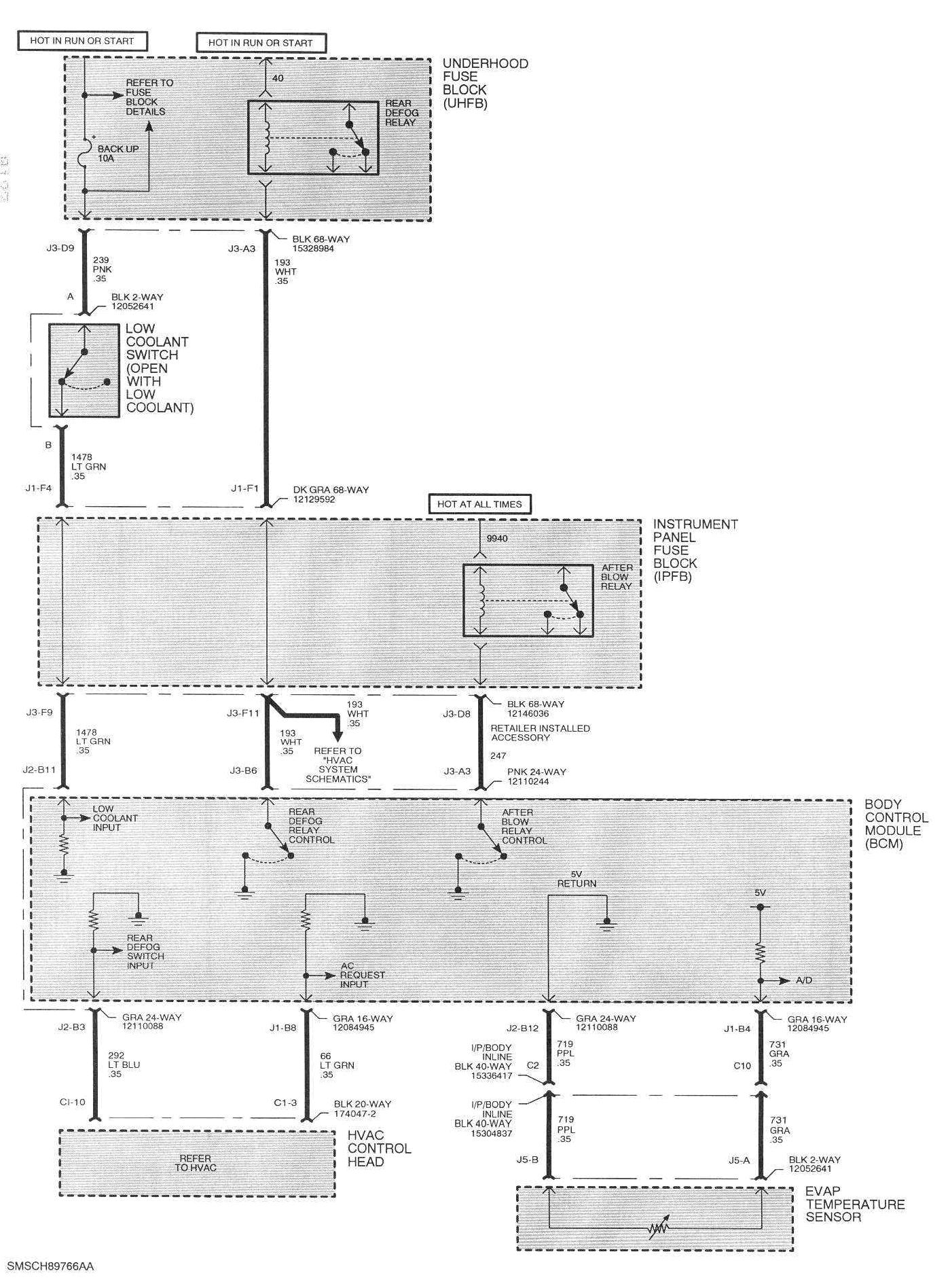
Body Control Module Schematics Part 1:




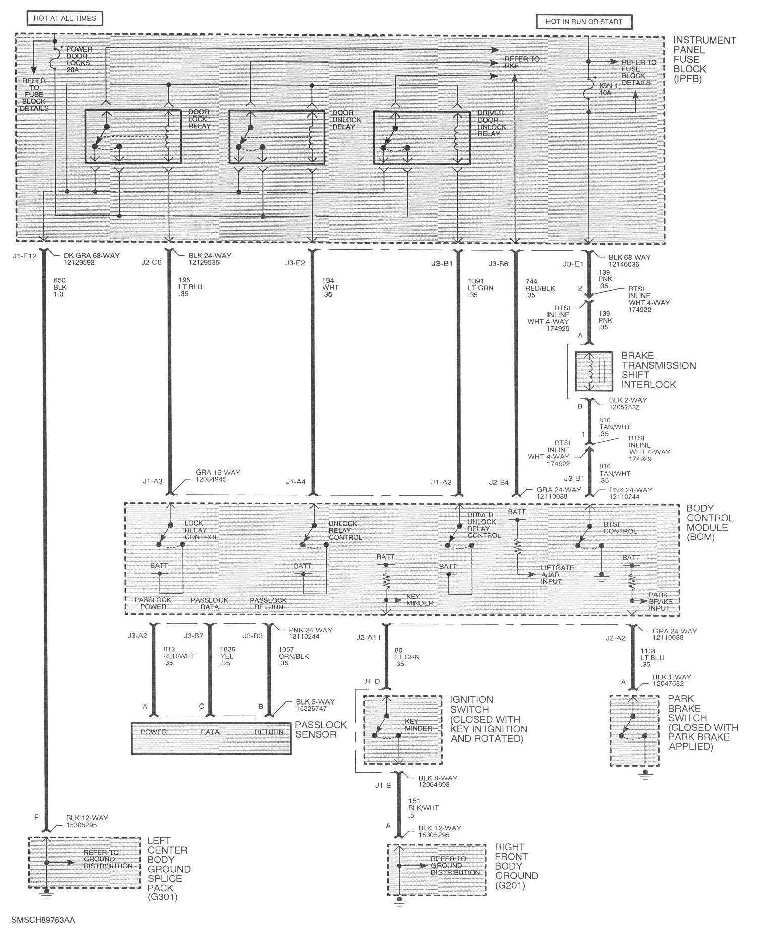
Body Control Module Schematics Part 2:




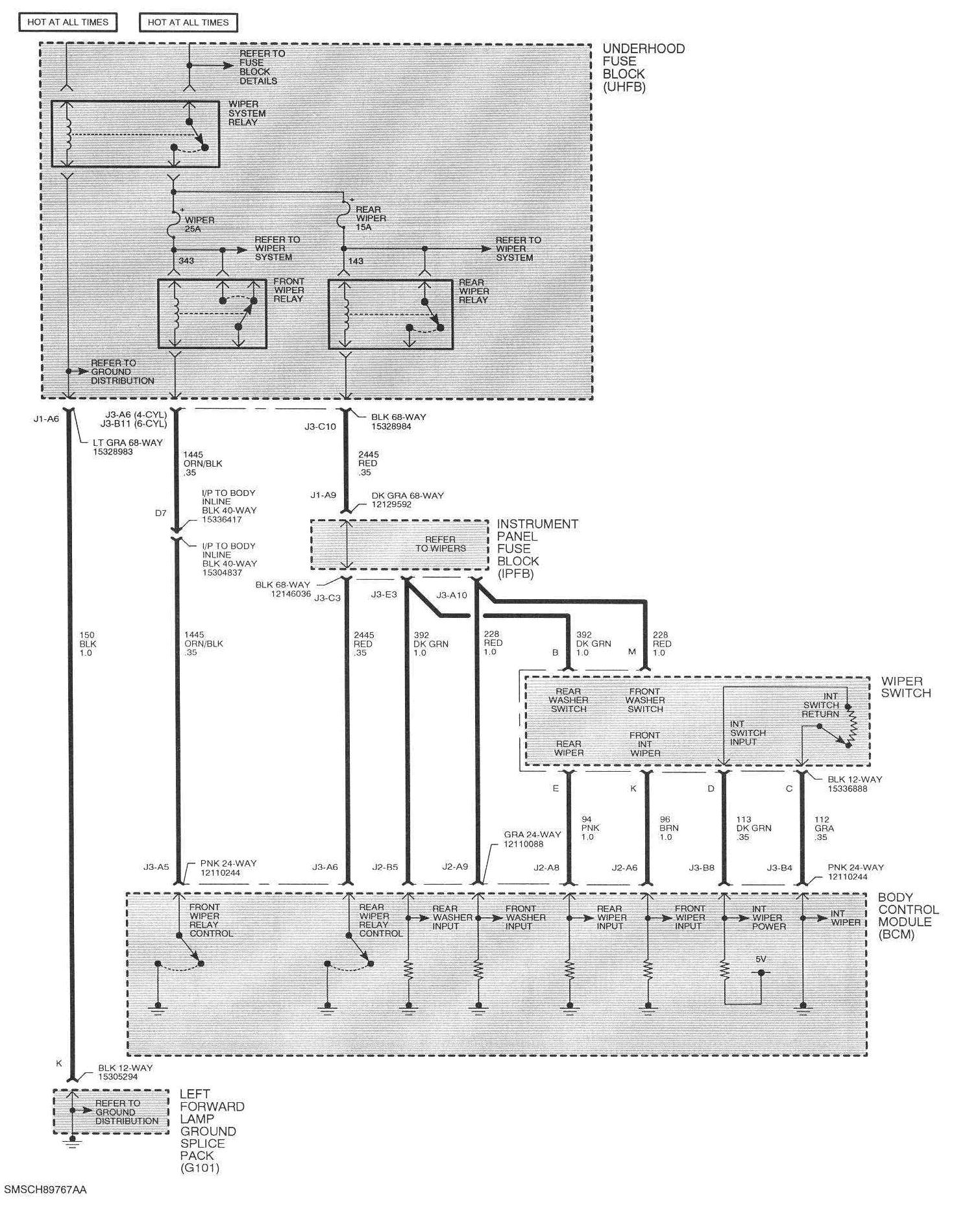
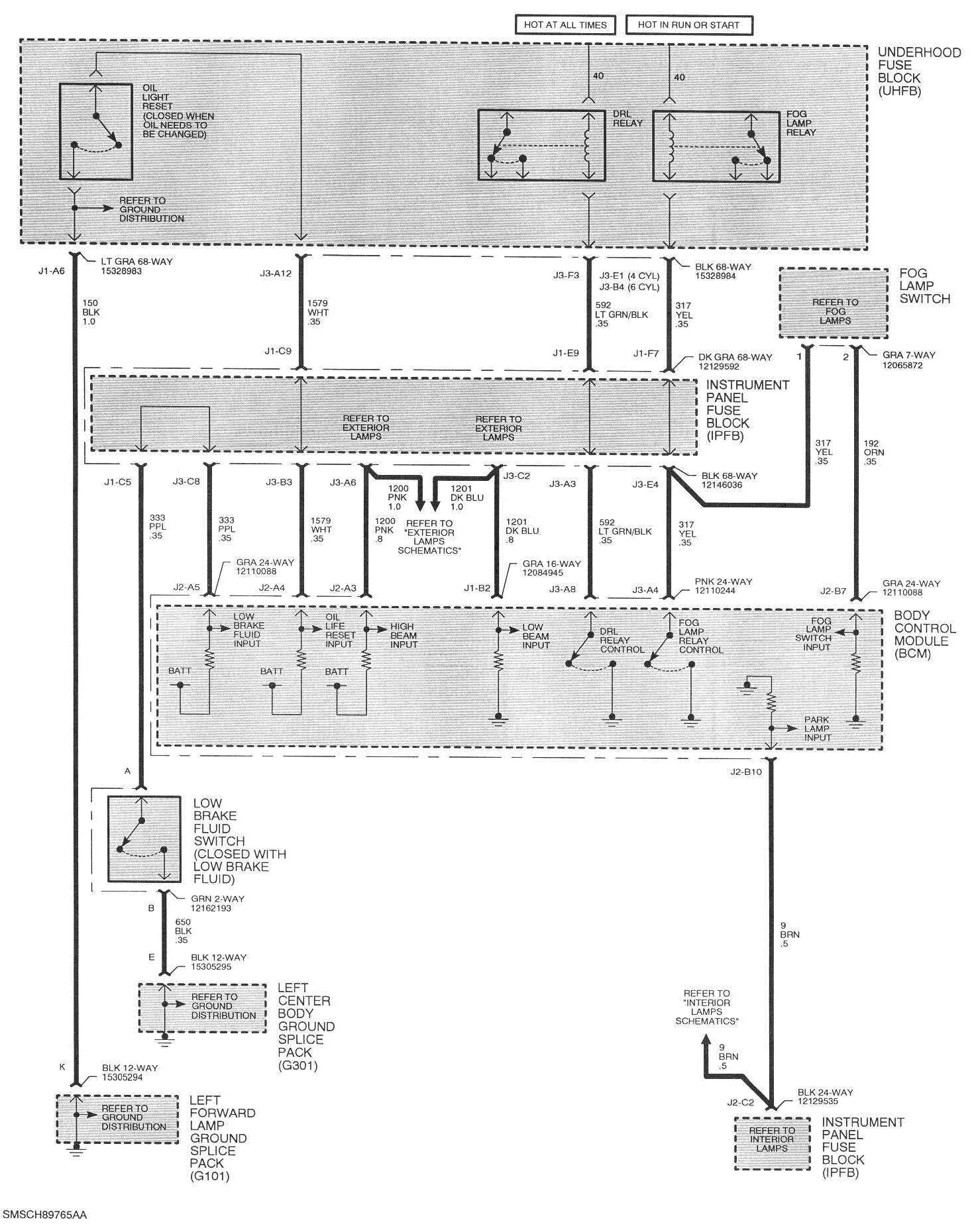
Body Control Module Schematics Part 3:




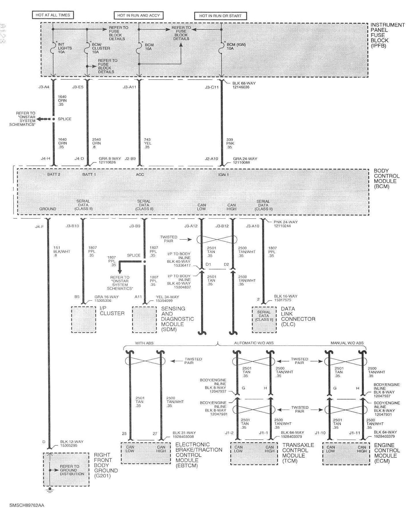
Body Control Module Schematics Part 4:




Body Control Module Schematics Part 5:




Body Control Module Schematics Part 6: