lemon-mirror:
Home >> Jeep >> 2008 >> Commander 2WD V6-3.7L >> Repair and Diagnosis >> Power and Ground Distribution >> Relay Box >> Locations >> Fuse Panel

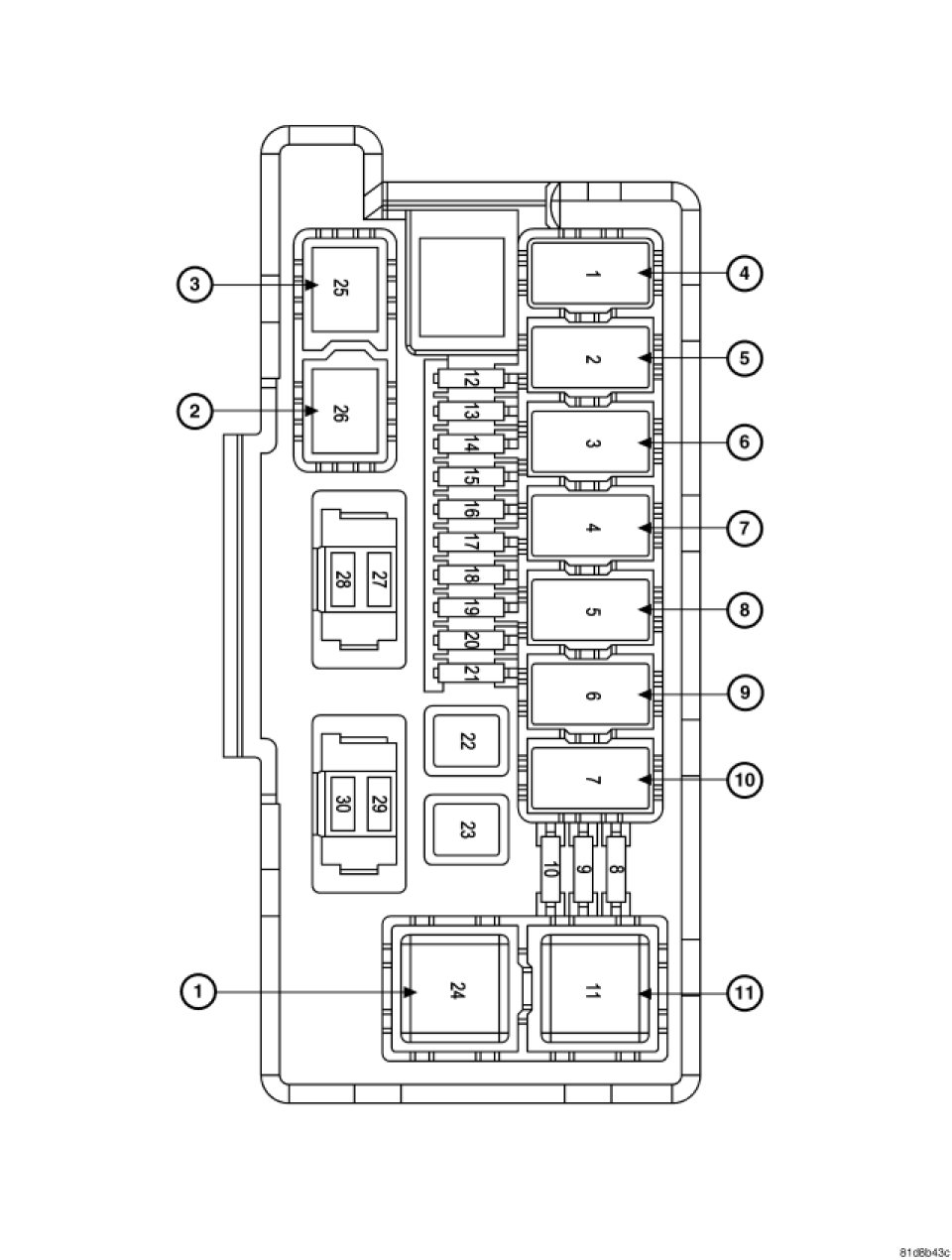
Fuse Panel







FUSE PANEL

Interior Fuses





The fuse panel is on the lower instrument panel just to the left of the steering column.













Underhood Fuses (Power Distribution Center)













Underhood Fuses (Integrated Power Module)