lemon-mirror:
Home >> Isuzu >> 2001 >> Rodeo S 2WD L4-2.2L >> Repair and Diagnosis >> Powertrain Management >> Computers and Control Systems >> Shift Light >> Testing and Inspection

Shift Light: Testing and Inspection

Upshift Lamp System Check (Manual Transmission Only)

Upshift Lamp System Check (Manual Transmission Only):




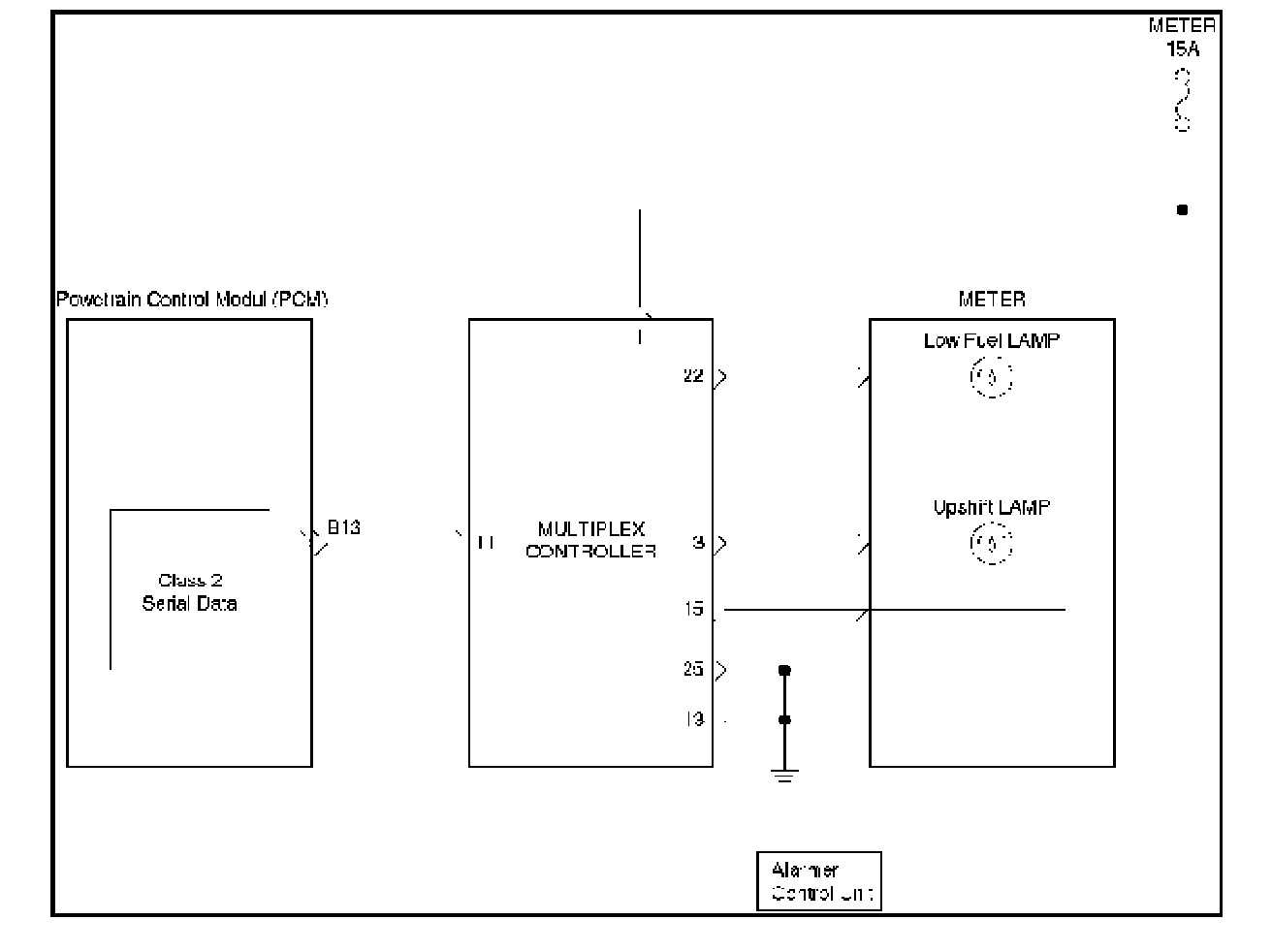
Circuit Description
The shift lamp indicates the best transmission shift point for maximum fuel economy.
The lamp is controlled by the Power Train Control Module (PCM) and the Multiplex Controller, it is turned "ON" by grounding in the Multiplex Controller.
The PCM is used information from the following inputs to control the upshift lamp.
- Engine Coolant Temperature (ECT) Sensor
- Throttle Position Sensor
- Vehicle Speed Sensor
- Engine Speed
The PCM uses the measured RPM and the vehicle speed to calculate what gear the vehicle is in. Its this calculation that determines when the upshift lamp should be turned "ON".

Step 1 - 2:




Step 3 - 15:




Step 16 - 17:




Diagnostic Aids
An intermittent may be caused by a poor connection, rubbed-through wire insulation. Check for poor connections or a damaged harness.
Inspect the PCM harness and connector for proper mating, broken locks, improperly formed or damaged terminals, poor terminal-to-wire connection and damaged harness.