lemon-mirror:
Home >> Hyundai >> 2011 >> Sonata L4-2.4L >> Repair and Diagnosis >> Powertrain Management >> Computers and Control Systems >> Body Control Module >> Description and Operation >> Part 2 of 2

Part 2 of 2

Central Door Lock/unlock

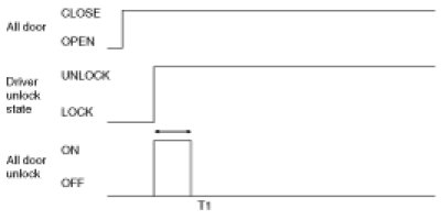
1. ALL DOOR LOCK output is ON during T1(0.5s) if Driver unlock State or Assist Unlock State is LOCK within 3sec after driver Key Lock switch(Assist Key Lock switch ) is turned ON. But, IGN1 ON when output is prohibited.
2. ALL DOOR UNLOCK output is ON during T1(0.5s) if Driver Unlock State or Assist Unlock State is UNLOCK within 3sec after Driver Key Unlock switch(Assist Key Unlock switch ) is turned ON.
3. ALL DOOR LOCK output is ON during T1 at TLock ON or SMK RKE CMD LOCK or Passive Lock ON. But, Passive Lock ON signal and will be ignored at Driver Door SW ON or Assist Door SW ON
4. ALL DOOR UNLOCK output is ON during T1 at TUnlock ON or SMK RKE CMD UNLOCK or Passive Unlock ON.
SMK RKE CMD = LOCK : SMK RKE CMD = Lock & No1 or Lock & No2
5. ALL DOOR LOCK output is ON during T1 at Power window door Lock switch ON.
6. ALL DOOR UNLOCK output is ON during T1 at Power window door Unlock switch ON. But, Power window door Unlock switch ON signal and will be ignored in ARM, ARMWAIT,REARM, ALARM state.
7. LOCK/UNLOCK by Driver door Unlock switch, Assist door Unlock switch operation is not interlocked. (mechanical operation)
8. Shall be no malfunction at Battery connection. (Shall be no malfunction even at Key In switch.
9. When the output of the reverse output requirements and the current output immediately OFF, 100ms delay send output to the reverse. 100ms delay is required during the output when the output needs to eventually send us the output.
10. LOCK output and UNLOCK output conditions at the same time, if the LOCK output is done, and the UNLOCK output is ignored.
11. ALL DOOR LOCK and ALL DOOR LOCK status of the output conditions, the actual output is not, and ALL DOOR UNLOCK and ALL DOOR UNLOCK status of the output conditions, the actual output is not.
12. ALL DOOR LOCK(UNLOCK) switch to LOCK(UNLOCK) to power window door Lock switch(Power window Unlock switch), TLock, TUnlock, SMK RKE CMD LOCK, SMK RKE CMD UNLOCK, Driver door Key Lock switch, Driver door Key Unlock switch, Assist door Key Lock switch, Assist door Key Unlock switch, regardless of the status and needs by the LOCK(UNLOCK) should always output.




SMK RKE CMD = UNLOCK : SMK RKE CMD = UNLOCK & NO1 or UNLOCK & NO2

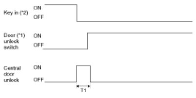
2-Turn Unlock
1. If Driver Door Key Unlock Switch turns OFF from ON within T1 after Driver Door Key Unlock Switch turns ON from OFF(Driver Door Unlock Switch becomes UNLOCKED mechanically and does not output BCM.), turn Driver Unlock Relay, Unlock Relay(Central Unlock) output ON during T2.
2. If TUNLOCK is received within T1 after Driver Door Key Unlock Switch turns ON from OFF (Driver Door Unlock Switch becomes UNLOCKED mechanically and does not output BCM.), turn Driver Unlock Relay and Unlock Relay(Central Unlock) output ON during T2.
3. Turn Driver Unlock Relay output ON during T2 when receiving TUNLOCK signal. However, turn Driver Unlock Relay, Unlock Relay (Central Unlock) output during T2 if TUNLOCK is received within T1.
4. Also, turn Driver Unlock Relay, Unlock Relay (Central Unlock) ON during T2 in case that Driver Door Key Unlock Switch turns ON from OFF within T1 after receiving TUNLOCK.
5. Regard as the same TX even though different signal which is registered within T1 is received.
6. If turn Lock Relay output ON by TLock or Driver/Assist Key lock Switch, T1 is initialized.
7. Assist Key Unlock Switch turns ON from OFF, turn Driver Unlock Relay and Unlock Relay (Central Unlock) output ON during T2.




T1 : 4 +/- 1sec, T2 : 0.5 +/- 0.1sec

2-Turn Unlock (SMK)
1. All DOOR UNLOCK output are ON during T2 if Driver door unlock switch is unlock within 3s and Driver door key unlock switch is OFF->ON within T1 after Driver door key unlock switch is OFF->ON (mechanically, Driver door unlock switch is unlocked and BCM signal is not output).
2. All DOOR UNLOCK output are ON during T2 if Driver door unlock switch is UNLOCK within 3s and SMK/RKE command= UNLOCK is received within T1 after Driver door key unlock switch is OFF -> ON (mechanically, Driver door unlock switch is unlocked and BCM signal is not output).
3. DRIVER DOOR UNLOCK signal is output for T2 when SMK/RKE command=UNLOCK signal is received. But, ALL DOOR UNLOCK signals are output for T2 if SMK/RKE command=UNLOCK signal is received within T1.
4. All DOOR UNLOCK output are ON during T2 if Driver door key unlock switch is OFF->ON (mechanically, Driver door unlock switch is unlocked and BCM signal is not output) within T1 and Driver door unlock switch is UNLOCK within 3s after SMK/RKE command = UNLOCK received.
5. DRIVER DOOR UNLOCK output is ON during T2 when Passive unlock ON & P_FL ON is input. But, ALL DOOR UNLOCK output are ON during T2 if Passive unlock ON & P_FL ON is input within T1.
6. DRIVER DOOR UNLOCK output is ON during T2 when Passive unlock ON & P_FL ON is input. But, ALL DOOR UNLOCK output are ON during T2 if Driver door key unlock switch is OFF -> ON within T1.
7. DRIVER DOOR UNLOCK output is ON during T2 when Passive unlock ON & P_FL ON is input. But, ALL DOOR UNLOCK output are ON during T2 if SMK/RKE command = UNLOCK is received within T1.
8. Driver door unlock switch UNLOCK state of the output from the DRIVER DOOR UNLOCK does not require.
9. ALL DOOR UNLOCK output will be according to DRIVER DOOR UNLOCK output when the DRIVER DOOR UNLOCK output of the ALL DOOR UNLOCK output requirements.

IGN Key Reminder
1. This function is not performed when vehicle speed is 3km/h or more.
2. ALL DOOR UNLOCK signals are output for 1s after 0.5s from when the state becomes IGN KEY ON & Driver door SW OPEN & Driver Unlock State LOCK.
3. ALL DOOR UNLOCK signals are output for 1s after 0.5s from when the state becomes IGN KEY ON & Assist door switch OPEN & Assist Unlock State LOCK.
4. ALL DOOR UNLOCK signals are output for 1s after 0.5 form (1),(2) and anti-concurrent satisfaction, (3) paragraph pursuant
5. UNLOCK signal is output 3 times as Max (1s-output is excluded) in case LOCK state is held even when UNLOCK signal is output for 1s in (2),(3). (1s cycle: 0.5s ON/OFF)
6. (5) of Section Driver door switch is CLOSE CENTRAL UNLOCK in the LOCK state, while the one-time attempt.
7. ALL DOOR UNLOCK signal is output (only once) during 1s if Driver door switch is CLOSE within 0.5s from Driver Unlock State UNLOCK -> LOCK under IGN KEY ON.
8. ALL DOOR UNLOCK signal is output (only once) during 1s if Assist door switch is CLOSE within 0.5s from Driver Unlock State UNLOCK -> LOCK under IGN KEY ON.
9. ALL DOOR UNLOCK signal is output (only once) during 1s if Driver Unlock State is UNLOCK->LOCK within 0.5s from Driver door switch OPEN -> CLOSE under IGN KEY ON.
10. ALL DOOR UNLOCK signal is output(only once) during 1s if Assist Unlock State is UNLOCK->LOCK within 0.5s from Assist Door switch OPEN -> CLOSE under IGN KEY ON.
11. IGN KEY ON in Driver door switch or Assist Door switch is OPEN if the Power window door lock switch ON, KEY REMINDER functions to perform.
12. Judgment of the possibility of RETRY signal output is performed at RETRY signal output start. (after 1.5s from the first UNLOCK signal output)
13. After the condition if UNLOCK is met, UNLOCK signal is output if the condition is not held for 0.5s. But, UNLOCK signal is not output if KEY IN is OFF at the moment that 0.5s passes after the condition is met by Driver Unlock State or Assist Unlock State change from UNLOCK to LOCK.




T1,T3 : 0.5 +/- 0.1sec, T2 : 1 +/- 0.1sec, T4 : 0.5sec Max
KEY IN ON : Key in ON or ACC = 1 or IGN1 ON or IGN2 ON
KEY IN OFF : Key in OFF and ACC =0 and IGN1 OFF and IGN2 OFF
IGN KEY ON : Key in switch(Fob in) ON or ACC ON or IGN1 ON or IGN2 ON
IGN KEY OFF : Key in switch(Fob in) OFF and ACC OFF and IGN1 OFF and IGN2 OFF

Passive Key Reminder Unlock (SMK)
1. This function is not performed when vehicle speed is 3km/h or more.
2. When the driver door switch (Assist door switch) = OPEN and driver unlock state (Assist unlock state) are lock state, passive KEY REMINDER signal received at the output ALL DOOR UNLOCK is for 1s.
3. UNLOCK signal is output 3 times as Max (1s-output is excluded) in case LOCK state is held even when UNLOCK signal is output for 1s in (2). (1s cycle: 0.5s ON/OFF)




T1 : 1 +/- 0.1sec, T2 : 0.5 +/- 1sec

Crash Door Unlock
1. FOB IN ON or KEY IN ON or ACC ON or IGN1 ON or IGN2 ON state Crash Input ON signal is ON, T1 is performed for ALL DOOR UNLOCK output. (CRASH UNLOCK output)
A. CRASH UNLOCK signal 16ms LOW / 4ms HIGH supposed to be 4 times the input, CRASH UNLOCK ON to be determined.
B. BCM CRASH UNLOCK signal is input from the sleep state is ignored.
2. Above (1) Section of the IGN1 CRASH UNLOCK output is even ON -> OFF CRASH UNLOCK output is maintained for the remaining time.
3. Above (1) CRASH UNLOCK output port for the T1 input CRASH UNLOCK again during the input signal is ignored.
4. ALL DOOR UNLOCK output to the UNLOCK -> LOCK Assist Unlock State, Driver Unlock State or when ALL DOOR UNLOCK output is performed during T2.
5. CRASH DOOR UNLOCK AUTO DOOR LOCK in conditions does not function.
6. CRASH DOOR UNLOCK functions by other functions LOCK / UNLOCK control overrides.
7. CRASH DOOR UNLOCK output after the output of other functions, and by the LOCK / UNLOCK request is ignored. However, KEY IN OFF & ACC OFF & IGN1 OFF & IGN2 OFF when other functions by the LOCK / UNLOCK control stick.




T1 = 5.0sec
* IGN KEY ON : ON - KEY IN or Fob in or ACC ON or IGN1 ON or IGN2 ON
OFF - KEY OUT or Fob OUT or ACC OFF or IGN1 OFF or IGN2 OFF
8. Crash Input for the input signal ON / OFF judging criteria are the following figure




T1 : 16 +/- 2msec, T2 : 4 +/- 2msec

Auto Door Lock/unlock Control (User Option)
1. ALL DOOR LOCK signal is output if vehicle speed is 15km/h within T1 under IGN1 ON && Alt L ON. But ALL DOOR LOCK , All DOOR LOCK signal is not output if all DOOR is LOCK or ALL DOOR are FAIL.
2. LOCK signal is output 3 times as Max if either one DOOR is UNLOCK after LOCK signal output in (2).(1s cycle) But, DOOR, which is LOCK from UNLOCK state during 3-time output, is ignored.
3. Relevant DOOR is FAIL if the state is UNLOCK after 3-time output.
4. LOCK signal is output once if the FAIL DOOR is UNLOCK again after the DOOR is LOCK.
5. LOCK signal is output once if locked doors, which are LOCK state after LOCK signal output in (2), are unlocked again. But, LOCK signal is output once for the relevant DOOR even when UNLOCK state continues after LOCK signal output.
6. FAIL DOOR is cleared at IGN switch OFF.
7. AUTO DOOR LOCK function is not performed when CRASH UNLOCK condition is met.




T1 : max 1.5sec, T2 : 0.5 +/- 0.1sec
ANY DOOR UNLOCK ON driver Unlock State Unlock or assist Unlock State Unlock or rear left Unlock State or rear right unlock state
ANY DOOR UNLOCK OFF driver Unlock State Lock assist Unlock State Lock and rear left Unlock State and rear right unlock state

Auto Door Lock By Shift Lever Change
1. IGN1 ON & Alt L ON state of 100msec in the close future, and ANY DOOR UNLOCK ANY DOOR UNLOCK ALL DOOR (Driver door SW & Assist door SW & Rear left door SW & Rear right SW) in the conditions when Inhibit P, ON->OFF, ALL DOOR LOCK to the output.
2. AUTO DOOR LOCK function is not performed when CRASH UNLOCK condition is met.

Auto Door Unlock By Key In Condition
1. ALL DOOR UNLOCK signal is output at IGN KEY IN->OUT. But, UNLOCK state that is ALL DOOR to UNLOCK does not output.




T1 : 0.5 +/- 0.1sec
*1 ON(UNLOCK) : Driver Unlock State or assist Unlock State or rear left Unlock state or rear right unlock state = UNLOCK
OFF (LOCK) : Driver Unlock State & assist Unlock State & rear left Unlock state & rear right unlock state = LOCK
*2 KEY IN ON : Key in switch ON or ACC =1 or IGN1 ON or IGN2 ON
KEY IN OFF : Key in switch OFF and ACC =0 and IGN1 OFF and IGN2 OFF

Auto Door Unlock (Only SMK)
1. Under under ANY DOOR LOCK, ALL DOOR UNLOCK signal is output at ACC ON->OFF.




T1: 0.5s +/- 0.1s

Auto Door Unlock By Driver Door Unlock State (User Option)
1. ALL DOOR UNLOCK signal is output one-time during T1 if ALL DOOR(Driver Door switch & Assist door switch & Rear left door switch & Rear right door switch) is CLOSED and Driver Unlock State is Lock->Unlock.




T1: 0.5s +/- 0.1s

Auto Door Unlock By Shift Lever Change
1. ALL DOOR CLOSE & ANY DOOR LOCK state is the state of IGN1 & Alt L ON to OFF->ON when in Inhibit P after 300msec, CENTRAL DOOR UNLOCK is the output.

Trunk Release Relay Control
Trunk Release Relay Control Data Flow





Trunk Release Relay Control
1. Trunk Release Relay is ON during T1 when TTrunk signal received.(NON-SMK)
Trunk Release Relay is ON during T1 when SMK RKE Trunk signal received.(NON-SMK)
2. Trunk Release Relay is ON during T1 when Trunk Release switch is OFF->ON.
But, ARMWAIT, ARM, REARM, ALARM mode, the Trunk Release switch input of the output does not.




T1 : 500 +/- 100msec

Key Interlock Control
Data Flow




1. Key solenoid to the output of the ON KEY to make the subject does not fall. (If IGN1 ON or ACC subject to the key Interlock switch input is OFF.)
2. In addition to the above conditions, the KEY OFF key solenoid output to fall out, to make conditions.
3. Key solenoid output OFF -> ON operation, 0.9sec ~ 1.5sec for the 7 - 10V and the behavior, then the voltage 6 - 9V to maintain.




T1 : 0.9 - 1.5sec

Tail Lamp Function In/out
Tail Lamp Function Block Diagram





Function Description
- General Function Condition
In BATTERY ON and Tail Lamp is off state, if user turns on the Tail Lamp switch (Tail switch ON), Tail Lamps are turned on.
1. Tail Auto Cut Function Condition
The "Tail Auto Cut" strategy ensures that Tail lamps are turned off even if a driver forgets to turn them off. When the Tail lamp is turned on by Tail lamp switch, after key insertion , and if a user removes key and opens the driver side door(or vice versa), the Tail lamps are automatically turned off. While "Tail Auto Cut" function is active, if a user turns off the Tail lamp switch or inserts key, "Tail Auto Cut" function will be deactivated and Tail lamps can be turned on.

NOTE:
- "Tail Auto Cut" state is memorized in ECU, so even if battery reset, this state is not erased.
- During the activation of Escort function, no Tail Auto Cut mode is possible and it is only after escort function deactivation that Tail Auto Cut mode can be applied.

(1) CAN signal Tail Activity Condition
When tail lamp output condition is met, Tail Lamp activity CAN data (EXT Tail_Act & INT Tail Act) is also turned on. When tail lamp output condition is not met, Tail Lamp activity CAN data (EXT Tail Act & INT Tail Act) is also turned off.
(2) Internal signal Tail Activity Condition
When tail lamp output is on, internal signal Tail Lamp activity (Tail Lamp) is also turned on.When tail lamp output is off, internal signal Tail Lamp activity (Tail Lamp) is also turned off.




2. HEAD LAMP CONTROL
(1) Overview Description
This function describes the following features
A. Turn on and off Head Lamp Low by Head Lamp Low Switch input.
B. Turn on and off Head Lamp Low by Escort Function.
C. Turn on and off Head Lamp Low by Auto Light Control Request.
D. Turn on and off Head Lamp High by Head Lamp High Switch input.
E. Turn on and off Head Lamp High and Low by Passing Switch Input.
F. Output control of Head Lamp Low.
G. Output control of Head Lamp High.
H. Output control of Head Lamp High Indicator.
I. Output control of Head Lamp control for CANADA DRL.

Head Lamp Function IN/OUT
1. Head Lamp Function Block diagram




2. Head lamp low signal control
A. Head Lamp Low control output is ON if HEAD LAMP LOW output is ON by 'Head Lamp Low switch ON ' or 'AUTO LIGHT function'.
B. Head Lamp Low control output is OFF when HEAD LAMP LOW output is ON->OFF.
3. Head lamp high control
Head Lamp High input and Head Lamp Passing input by M/F is Head Lamp High switch processing for single input same MULTI-FUNCTION WIRING DESCRIPTION as Head Lamp High switch only input.
A. Head Lamp High Input When Head Lamp High switch ON that in IGN2 ON and Head Lamp Low control output is ON by IMP, Head Lamp High is consider as input.
B. Head Lamp Passing Input When Head Lamp High switch ON that in IGN2 ON and Head Lamp Low control output is OFF, Head Lamp Passing is consider as input.
4. Multi-function wiring description





Function Description
1. Head Lamp Low Control
In IGN terminal State (IGN ON), if turn on the Head Lamp LOW switch(Head Lamp Low switch ON),
Head Lamp LOW outputs are turned on (Head Lamp Low ON).
When Tail lamp Off and headlamp Off conditions are satisfied at the same time, Head Lamp LOW and Tail LAMP turned off simultaneous immediately.
2. Head Lamp High Control
In IGN terminal State(IGN ON) and Head Lamp Low switch On(Head Lamp Low switch ON), if turn on the Head Lamp High switch(Head Lamp High switch ON), Head Lamp High Outputs are turned on (Head Lamp High ON).
3. Passing Control
In IGN terminal State(IGN ON), If Head Lamp Passing switch Input(Head Lamp High switch ON & Head Lamp Low control OFF) is detected then Head Lamp High Output(Head Lamp High ON) are turned on and Head Lamp Low Output(Head Lamp Low ON) at the same time.
4. Canada DRL
A. If alternator level is high(ALT L=On), BCM activates Canada DRL functionality and turns on the Head lamp high (CANADA DRL=On).
B. Deactivation if:
(1) Head lamp low On request by Head lamp switch or auto light head lamp Low control or
(2) Head high On request by passing switch or
(3) Parking brake switch On




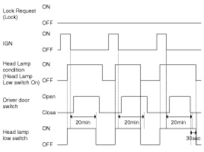
5. Escort Function
After user generates the call of head lamp low light(Head Lamp Low switch On), if switch off ignition(IGN Off and START Off), and then keep Head Lamp Low Output On (Head Lamp Low ON)state during 20min.
And after open and close driver side door(Driver door switch ON -> Driver door switch Off), user will have consequently lighting of head lamp low(Head Lamp Low ON) during only 30sec.
During active "Escort Function", if receive Lock request 2 times (2 LOCK) or cancel the lighting request of head lamp low (Head Lamp Low switch Off & Auto Light switch Off), this function is released.
Lock request counting for 2 times (2 LOCK) is each follow cases:
(1) RKE CMD == Lock
(2) SMK RKE CMD == Lock
(3) Passive Access Lock== Lock
If open the Driver door(Driver door switch ON) or close(Driver door switch Off), former lock counter is cleared, and start new 2 times lock counting.
6. Head Lamp Welcome Function
"Multifunction switch head lamp or auto light position and lock stated, if remote unlock, and then keep head lamp output on state during 15second.Lighting state, if remote lock and unlock, immediately light turn off."

NOTE:
- While escort function is activated, Tail lamp is keeping the turn on state and does not go to Auto cut and after finish escort state and user removes key, it can go Auto cut mode.
- While the "Escort Function" is activated by 'Head Lamp Low Switch', if change from 'Head Lamp Low Switch' to 'Lamp Auto Switch', "Escort Function" is deactivated, because Lamp Auto mode is 'Lamp Off' condition.
- While the "Escort Function" is activated by 'Lamp Auto Switch', if change from 'Lamp Auto Switch' to 'Head Lamp Low Switch', "Escort Function" is keeping the activation state, because of 'Head Lamp On' condition.
- After IGN terminal off 20 minute timers is started, but as soon as door is opened and closed then 30sec timer is engaged.






Auto Light Control
1. Overview Description
This function describes the following features.
A. Input detection by Auto Light Sensor.
B. Generate Auto Light Out Status data.
C. Send Auto Light Out Status.
D. Tail Lamp Control by Auto light Mode.
E. Head Lamp Low Control by Auto light Mode.
F. AV Tail Control by Auto Light sensor level.
Auto Light Mode State Diagram is based on Auto Light Sensor's level.
Power condition of Auto Light Action.
G. When ACC, IGN, START terminal states, Auto Light Sensor operates.

Auto Light Control Function In/out
1. Auto Light Control Function Block Diagram




2. Function Description
In ACC, IGN, START terminal states, monitoring of the auto light sensor supply's range (Auto Light Power) is performed and a failure is raises up (Auto Light failure) when the supply's voltage is out of range(outside of range [4V:6V]).
If Auto Light failure occurs and as long as this error is present, the tail Lamp and head lamp low must be turned on regardless of the sunlight level provided by the sensor.
When physical Auto Light sensor failure occurs the Lamps are turned on, because a zero voltage level is provided by the sensor when internal failure is present.
This is designed to prevent any head lamp cut off when the failure occurs during the night.
AV Tail Output Control is started In ACC, IGN,START regardless of MF switch Auto Light switch. CAN signal AV Tail is set/reset at the same time as AV Tail.






Front Fog Lamp Control
1. Overview Description
This function describes the following features
A. Turn on and off Front Fog Lamp by Front Fog Lamp switch input.
B. Versus variant (NA, Non-NA), function description

Front Fog Lamp Function In/out
1. Front Fog Lamp Function Block Diagram




2. Function Description
(1) In case of (IGN2=ON) & (HeadLamp Low=ON) & (HeadLamp High=Off), if Front fog lamp switch input is detected (Front Fog SW=On), Front fog lamp output (FrontFog ON=On) is turned ON.
(2) If fails to activate front fog lamp output, indicator (FrontFogIND) is also turn off.