lemon-mirror:
Home >> Honda >> 2005 >> S2000 L4-2.2L >> Repair and Diagnosis >> Body and Frame >> Frame >> Specifications

Frame: Specifications

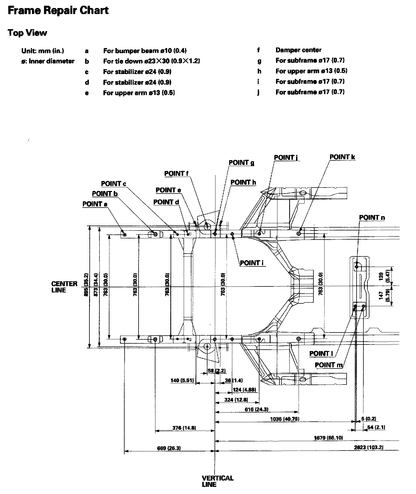
Frame Repair Chart, Top View Part 1:



Frame Repair Chart, Top View Part 2:



Frame Repair Chart, Side View Part 1:



Frame Repair Chart, Side View Part 2: