lemon-mirror:
Home >> Ford >> 2000 >> Explorer 2WD V6-4.0L VIN E >> Repair and Diagnosis >> Diagrams >> Electrical Diagrams >> General Module

General Module

Diagram 59-1:







Central Junction Box
Fuse 10
Fuse 20
Fuse 25
Fuse 28
Generic Electronic Module
Instrument Cluster
Left Front Door Ajar Switch
Left Liftgate Ajar Switch
Left Rear Door Ajar Switch
Liftgate Wiper Disable Switch
Right Front Door Ajar Switch
Right Liftgate Ajar Switch
Right Rear Door Ajar Switch



Diagram 59-2:







4 Wheel Drive Mode Switch
4 Wheel Anti-lock Brake System Module
ABS Evacuate and Fill Connector
Air Suspension Control Module
Central Timer Module
Data Link Connector
Driver Seat Module
Electric Shift Motor Transfer Case
Generic Electronic Module
Key Warning Switch
Liftgate Wiper/Washer Switch
Multifunction Switch
Parking Aid Module
Remote Anti-theft Personality Module
Restraints Control Module



Diagram 59-3:







4 Wheel Anti-Lock Brake System Module
Central Timer Module
Generic Electronic Module
Instrument Cluster
Main Light Switch
Message Center
Powertrain Control Module
Restraints Control Module
Safety Belt Warning Switch



Diagram 59-4:







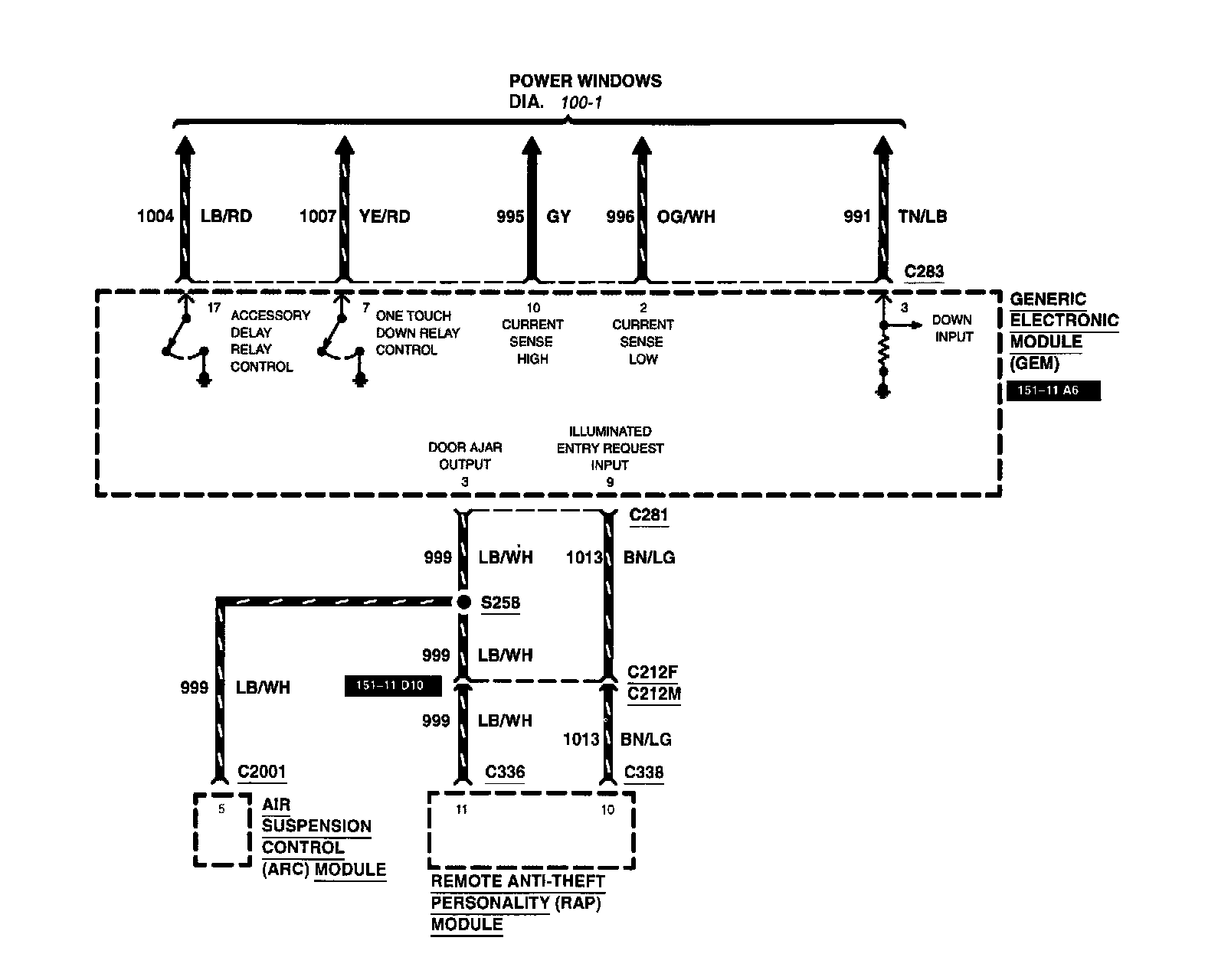
Air Suspension Control Module
Generic Electronic Module
Remote Anti-Theft Personality Module



Diagram 59-5:







Digital Transmission Range Sensor
Generic Electronic Module
Speed Sensors Power



Diagram 59-6:







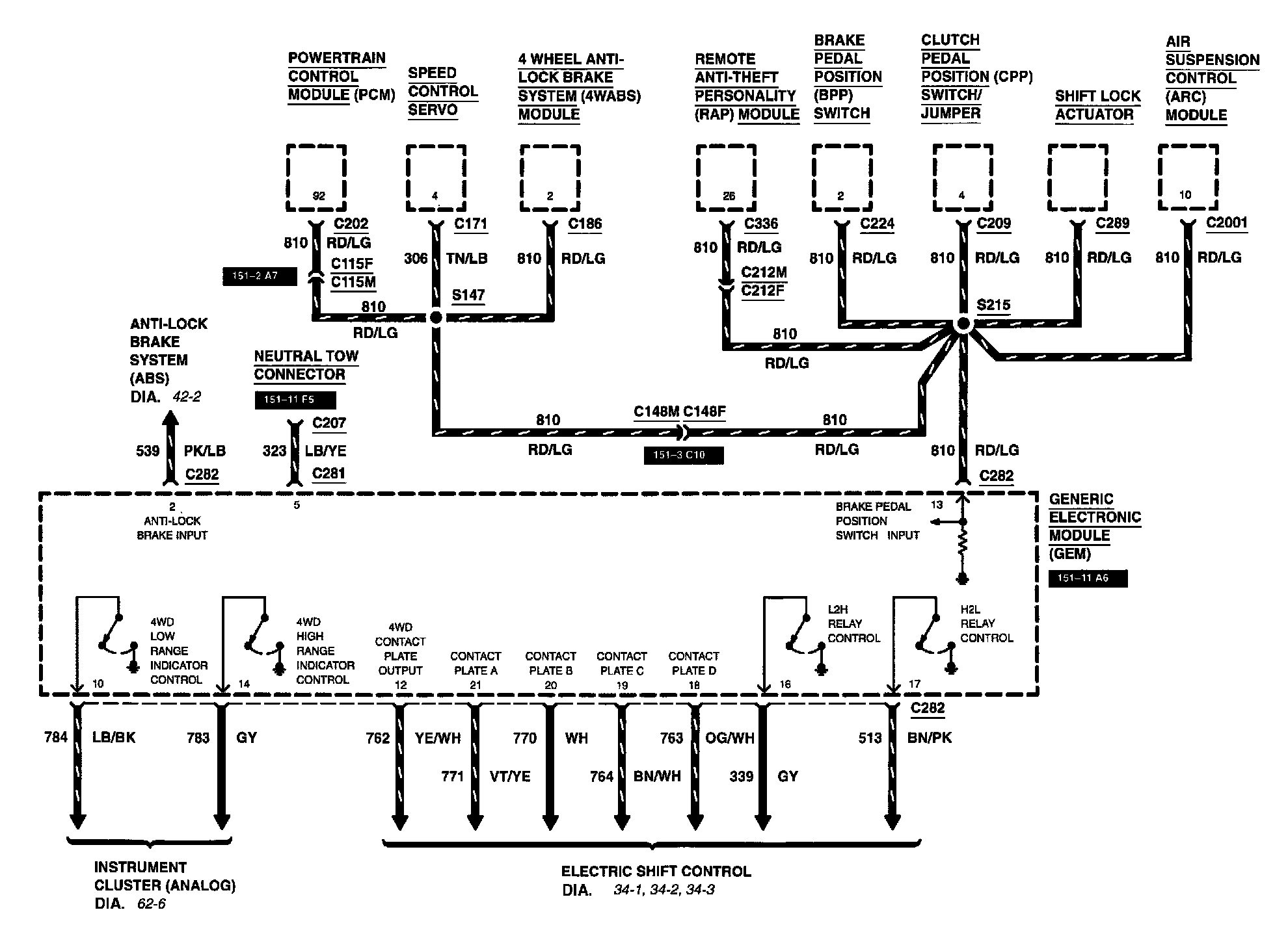
4 Wheel Anti-lock Brake System Module
Air Suspension Control Module
Brake Pedal Position Switch
Clutch Pedal Position Switch/Jumper
Generic Electronic Module
Neutral Tow Connector
Powertrain Control Module
Remote Anti-Theft Personality Module
Shift Lock Actuator
Speed Control Servo