lemon-mirror:
Home >> Chrysler >> 2005 >> Sebring Convertible L4-2.4L VIN X >> Repair and Diagnosis >> Diagrams >> Electrical Diagrams >> Powertrain Management >> Body Control Module >> System Schematic

System Schematic

Base Airbag Systems:



Premium Airbag Systems:



Base Radio - JR27 Audio System:



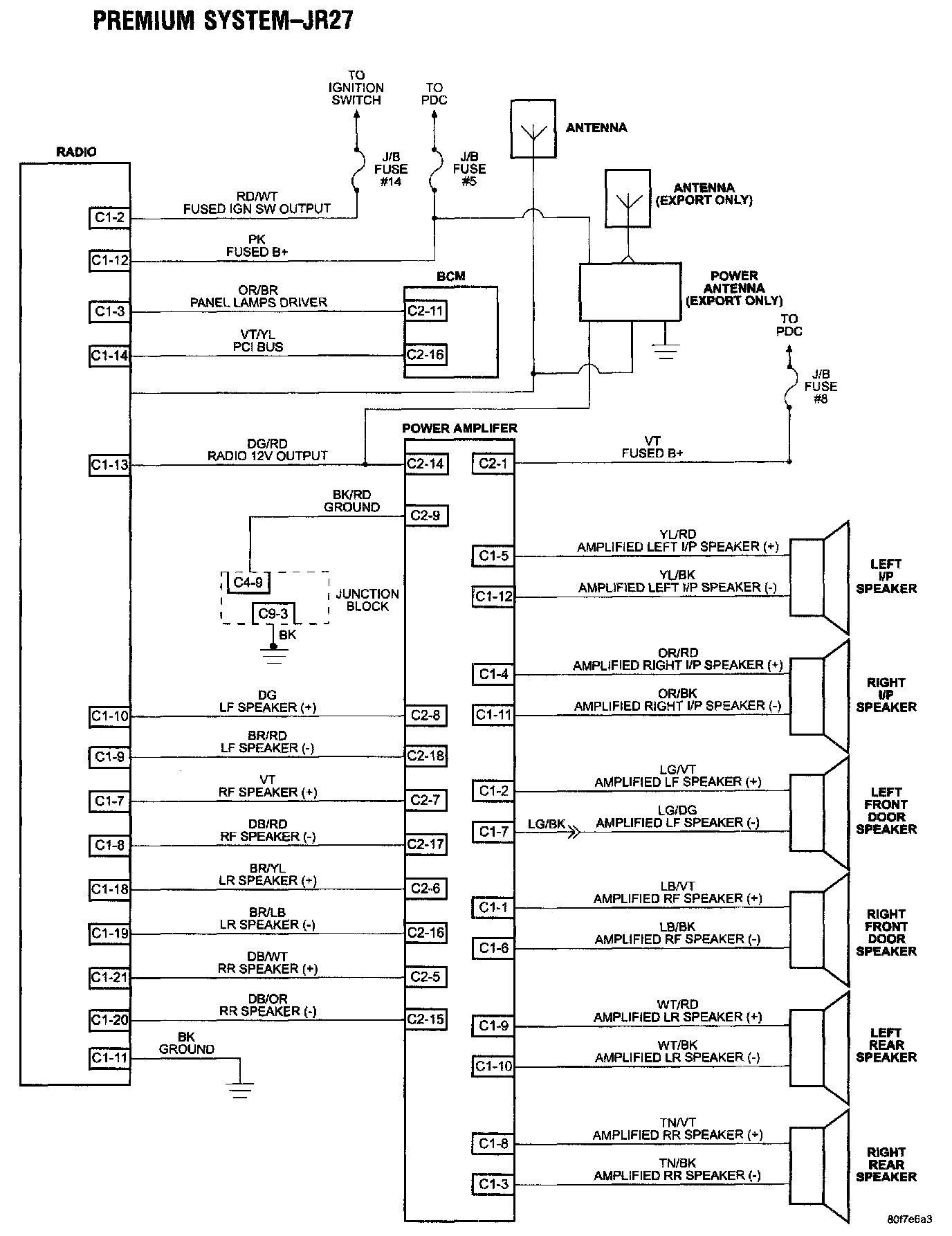
Premium System - JR27:



CD Changer:



Remote Radio Controls:



Chime System:



Compass/Mini Trip Computer (CMTC):



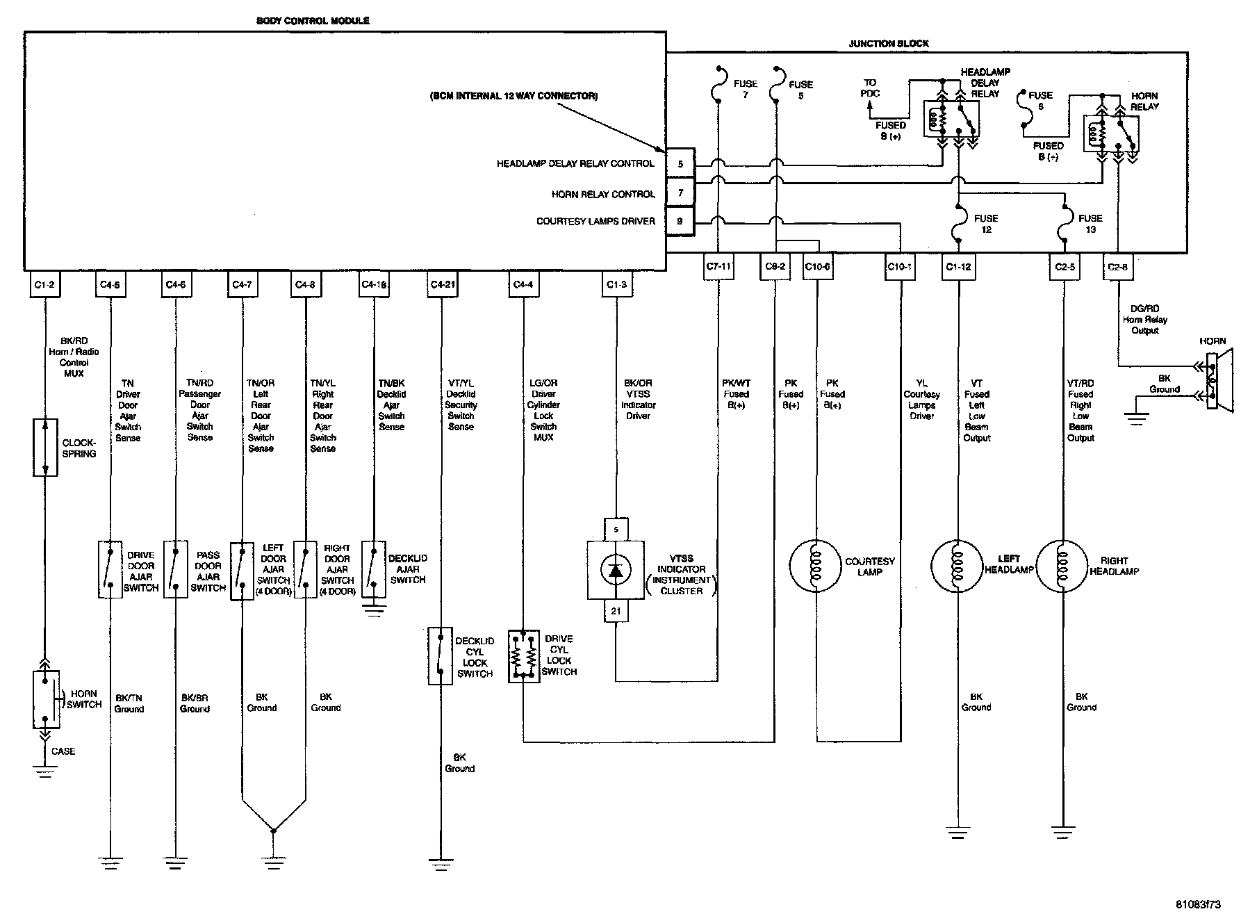
Door Ajar:



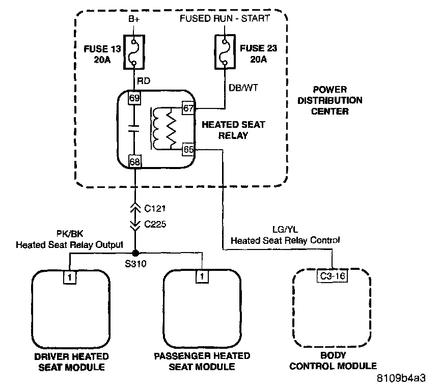
Heated Seat Relay:



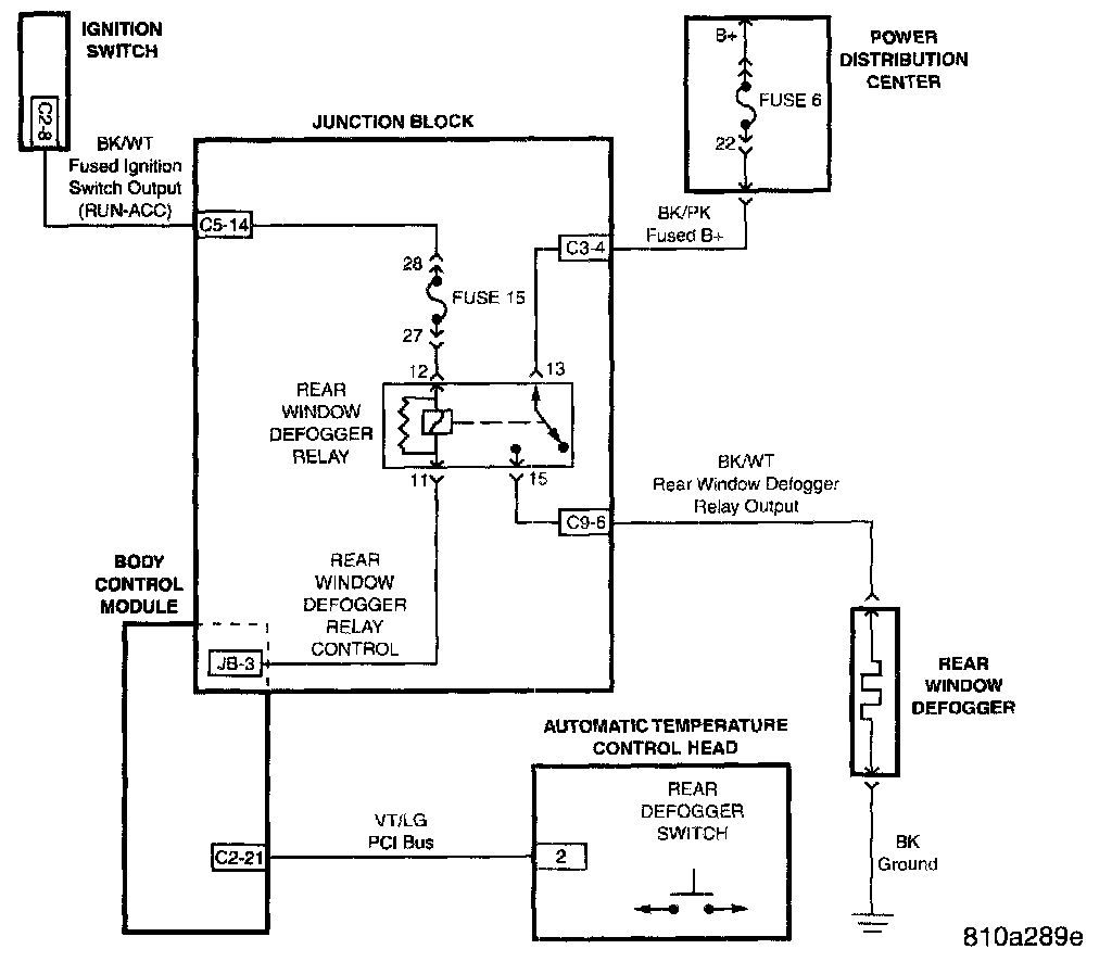
Rear Window Defogger (Automatic Temperature Control):



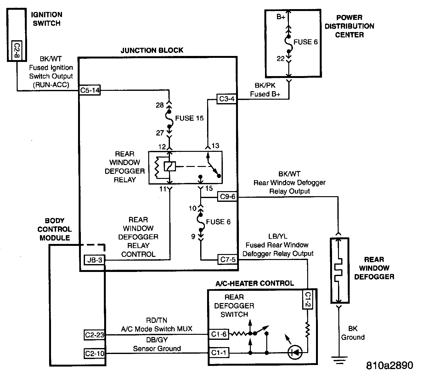
Rear Window Defogger (Manual Temperature Control):



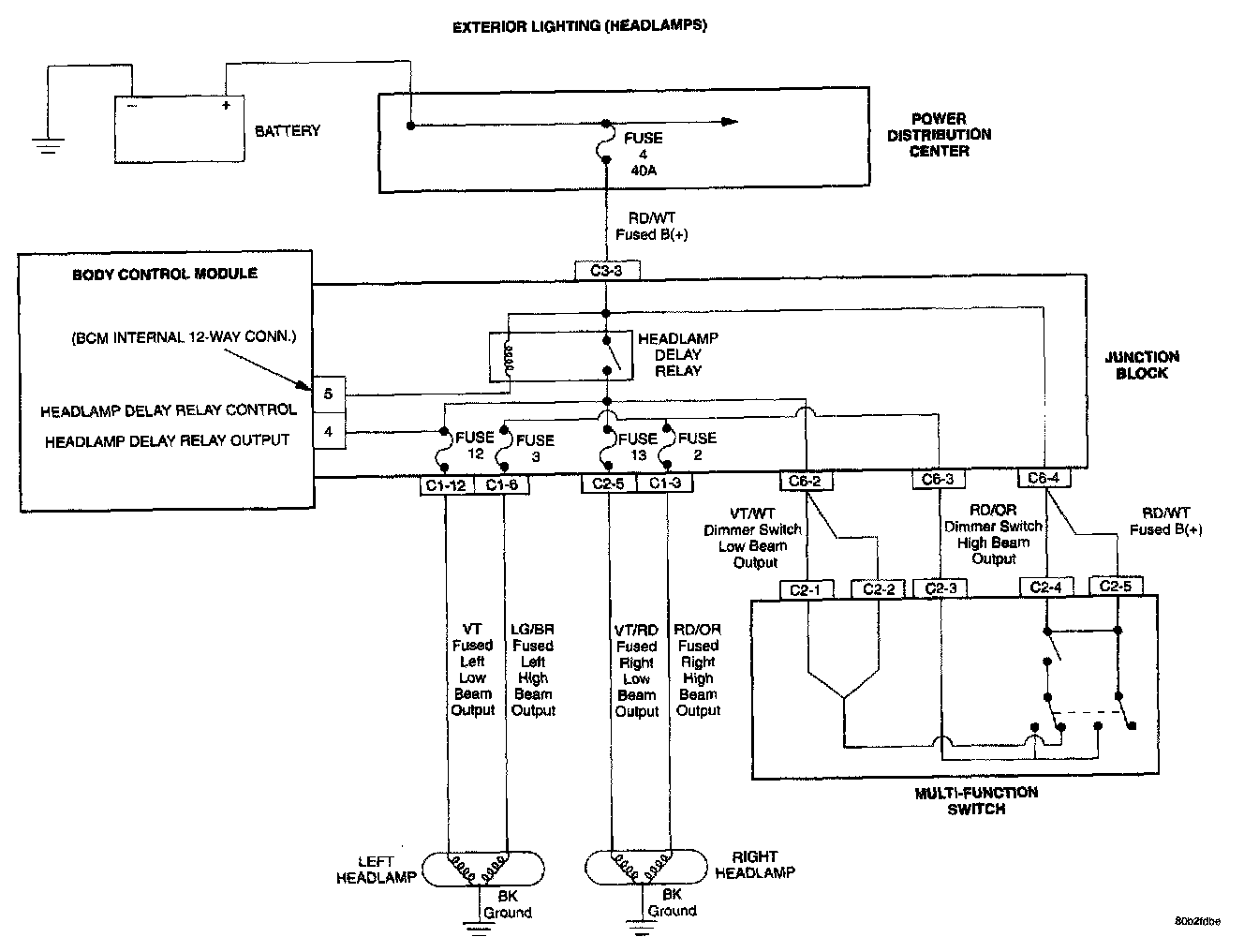
Exterior Lighting (Headlamps):



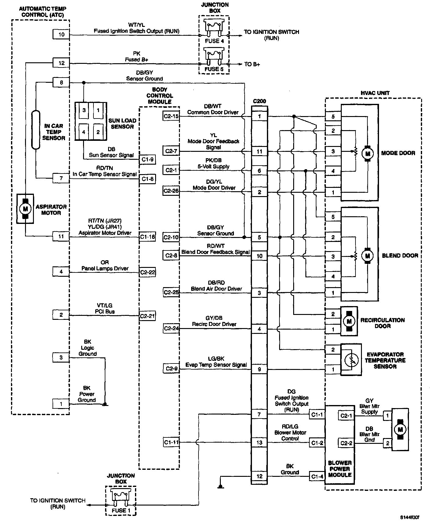
Automatic Temperature Control (ATC):



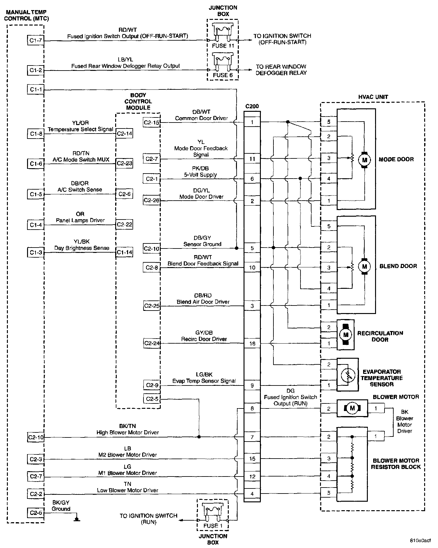
Manual Temperature Control (MTC):



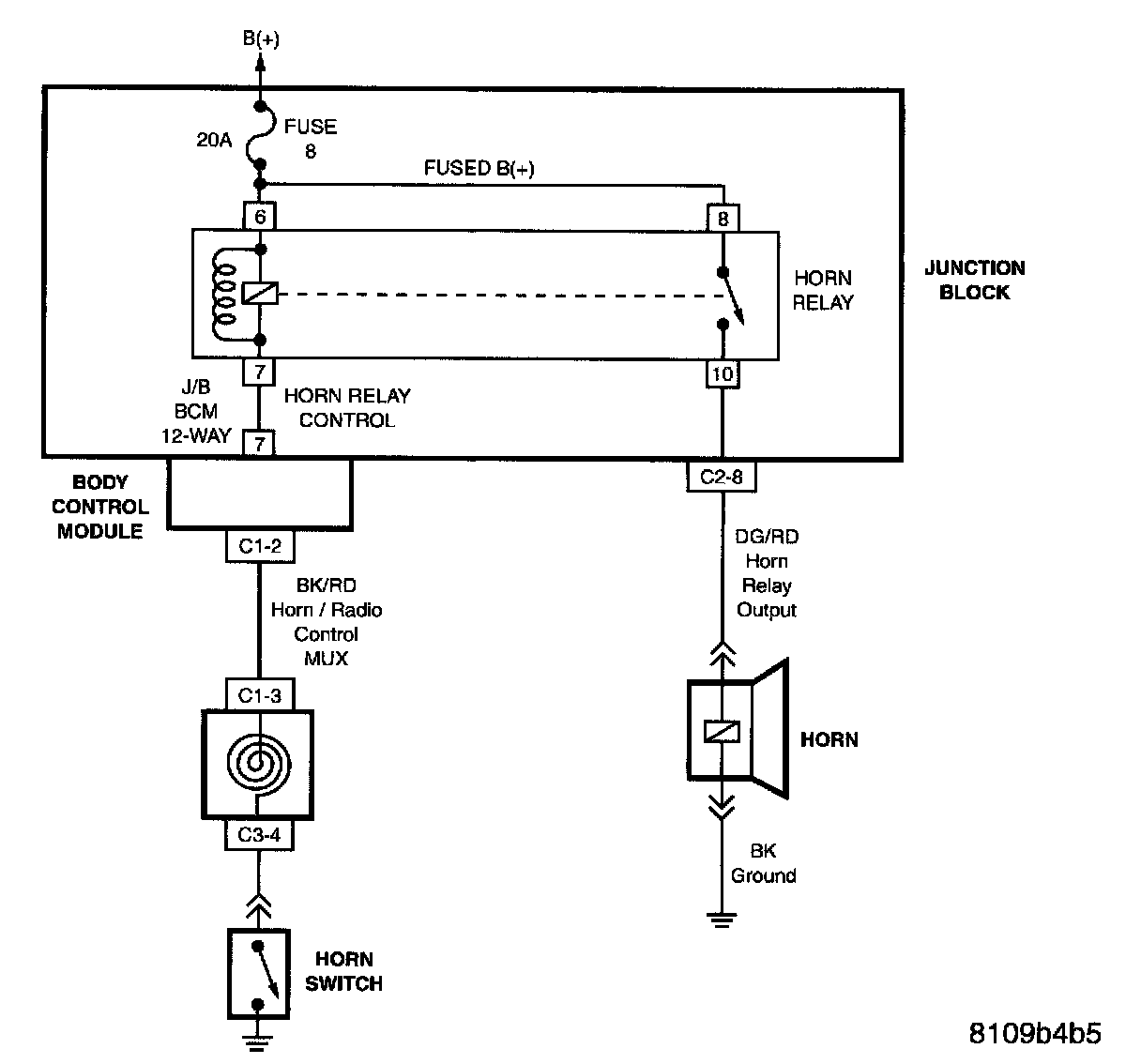
Horn System:



Courtesy Lamps:



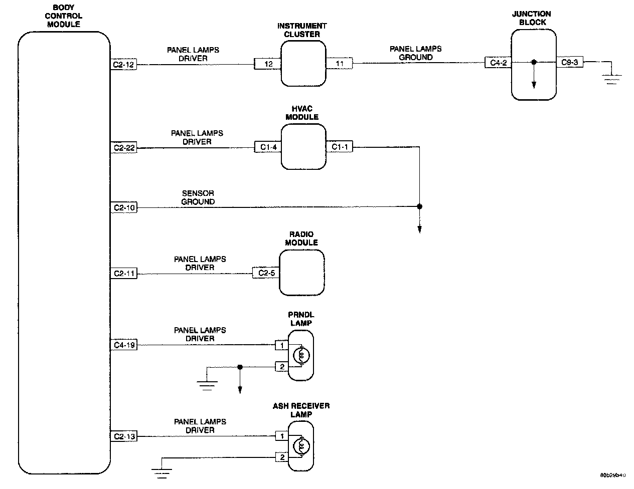
Panel Lamps:



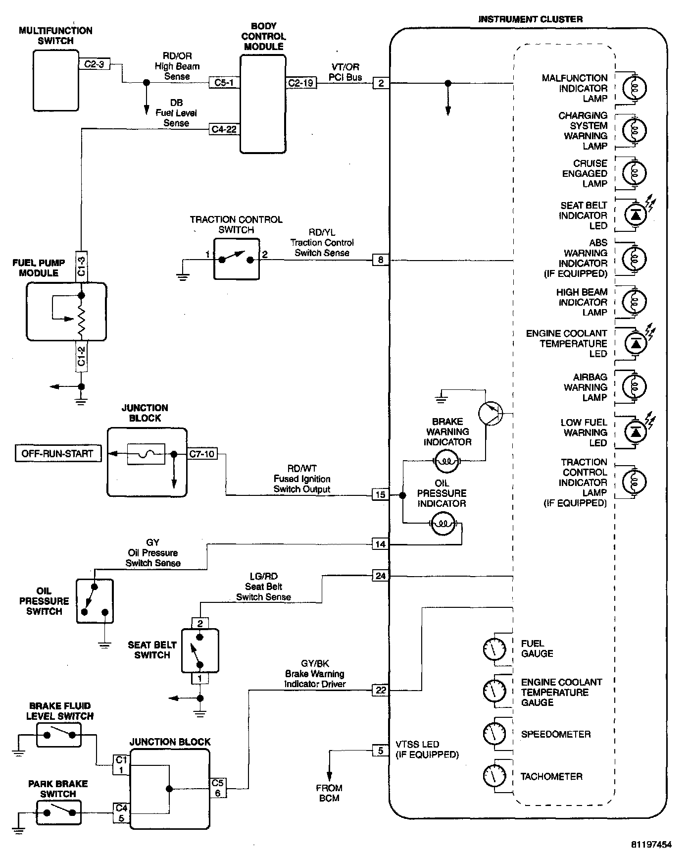
Mechanical Instrument Cluster:



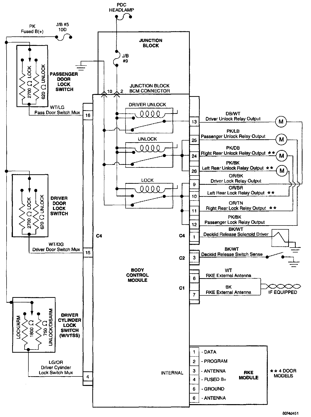
Power Door Locks/RKE:



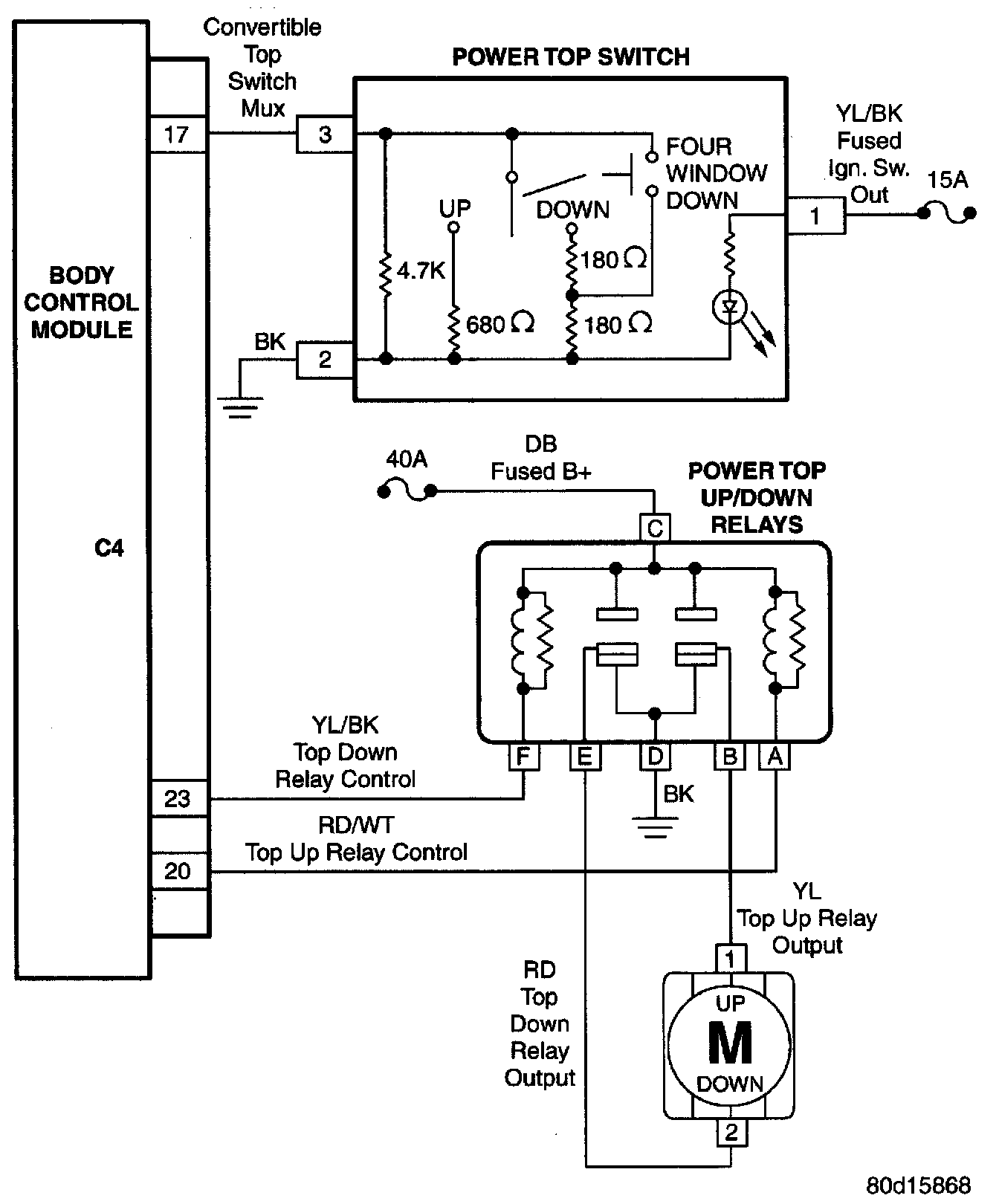
Convertible Top - Power Top:



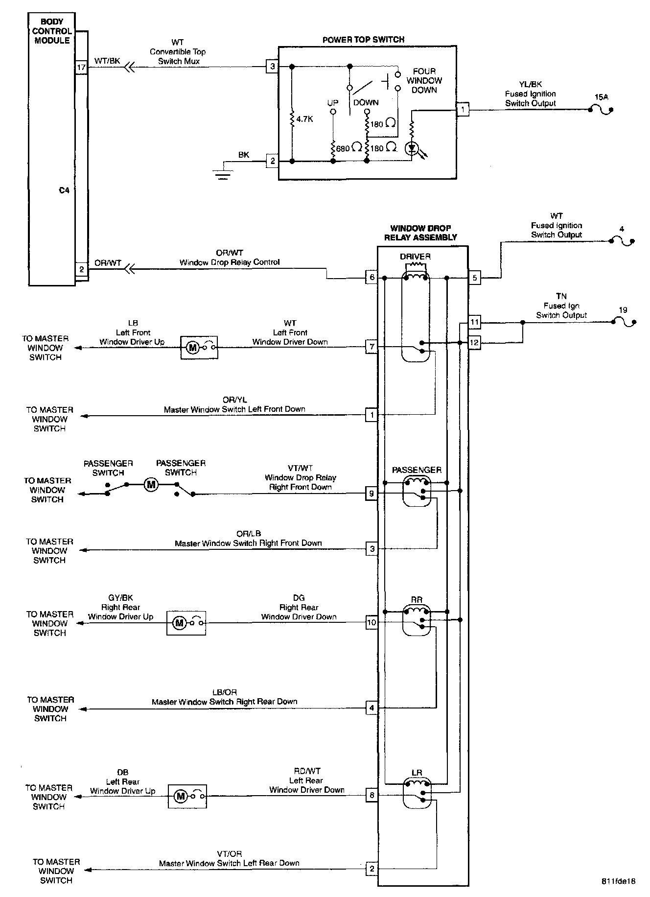
Power Top/4 Window Drop:



PCI Bus Communication:



PCM Communication:



Vehicle Theft Security System:



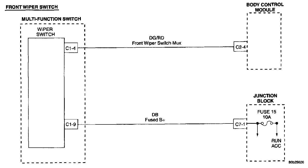
Wiper Switch:



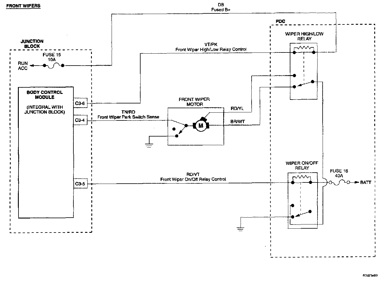
Front Wipers: