lemon-mirror:
Home >> Chrysler >> 2005 >> Crossfire V6-3.2L VIN L >> Repair and Diagnosis >> Powertrain Management >> Transmission Control Systems >> Testing and Inspection >> Overvoltage

Overvoltage

OVERVOLTAGE





POSSIBLE CAUSES
- ENGINE CHARGING SYSTEM DTCS PRESENT
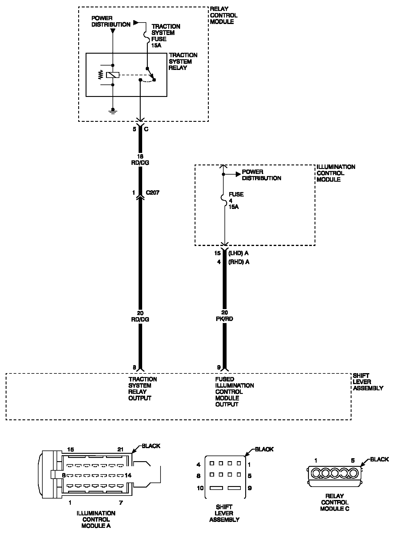
- FUSED IGNITION SWITCH OUTPUT OR TRACTION SYSTEM RELAY OUTPUT CIRCUITS HIGH AT SLA
- SHIFT LEVER ASSEMBLY

Diagnostic Test
1. ENGINE CHARGING SYSTEM DTCS PRESENT





Turn the ignition on.
With the DRB III*, read the engine DTCs.
Are any Engine Charging System DTCs present?
Yes>>Refer to the Engine - Electrical Diagnostics category and perform the appropriate symptom.
No>>Go To 2

2. FUSED IGNITION SWITCH OUTPUT OR TRACTION SYSTEM RELAY OUTPUT CIRCUITS OVERVOLTAGE





Turn the ignition off.
Disconnect the Shift Lever Assembly harness connector.

Note: Check connectors - Clean/repair as necessary. Start the engine and raise the engine speed to 1500 RPM.
Measure the voltage of the Fused Ignition Switch Output and Traction System Relay Output circuits at the SLA harness connector.
Is the voltage above 16.0 volts ± 0.3 volt?
Yes>>Repair the Fused Ignition Switch Output and Traction System Relay Output circuits for an overvoltage condition. Perform NAG1 TRANSMISSION VERIFICATION TEST.
No>>Replace the Shift Lever Assembly.
Perform NAG1 TRANSMISSION VERIFICATION TEST. Verification Tests