lemon-mirror:
Home >> Chrysler >> 2004 >> Sebring Convertible L4-2.4L VIN X >> Repair and Diagnosis >> Diagrams >> Electrical Diagrams >> Powertrain Management >> Body Control Module >> System Schematics

System Schematics

Base Airbag Systems:




Premium Airbag Systems:




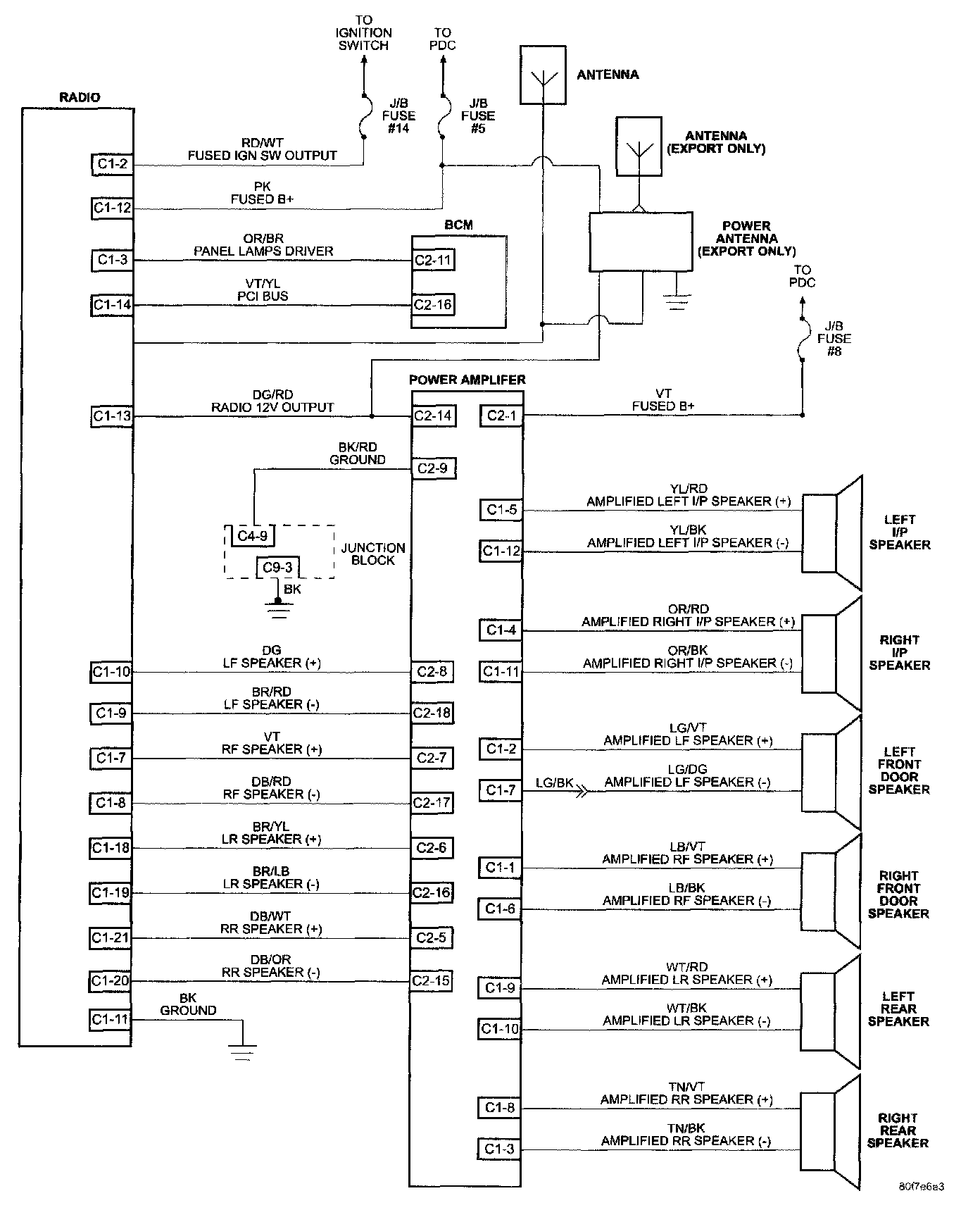
Base Radio - JR41 Audio System:




Base Radio - JR27 Audio System:




Premium System - JR41:




Premium System - JR27:




CD Changer:




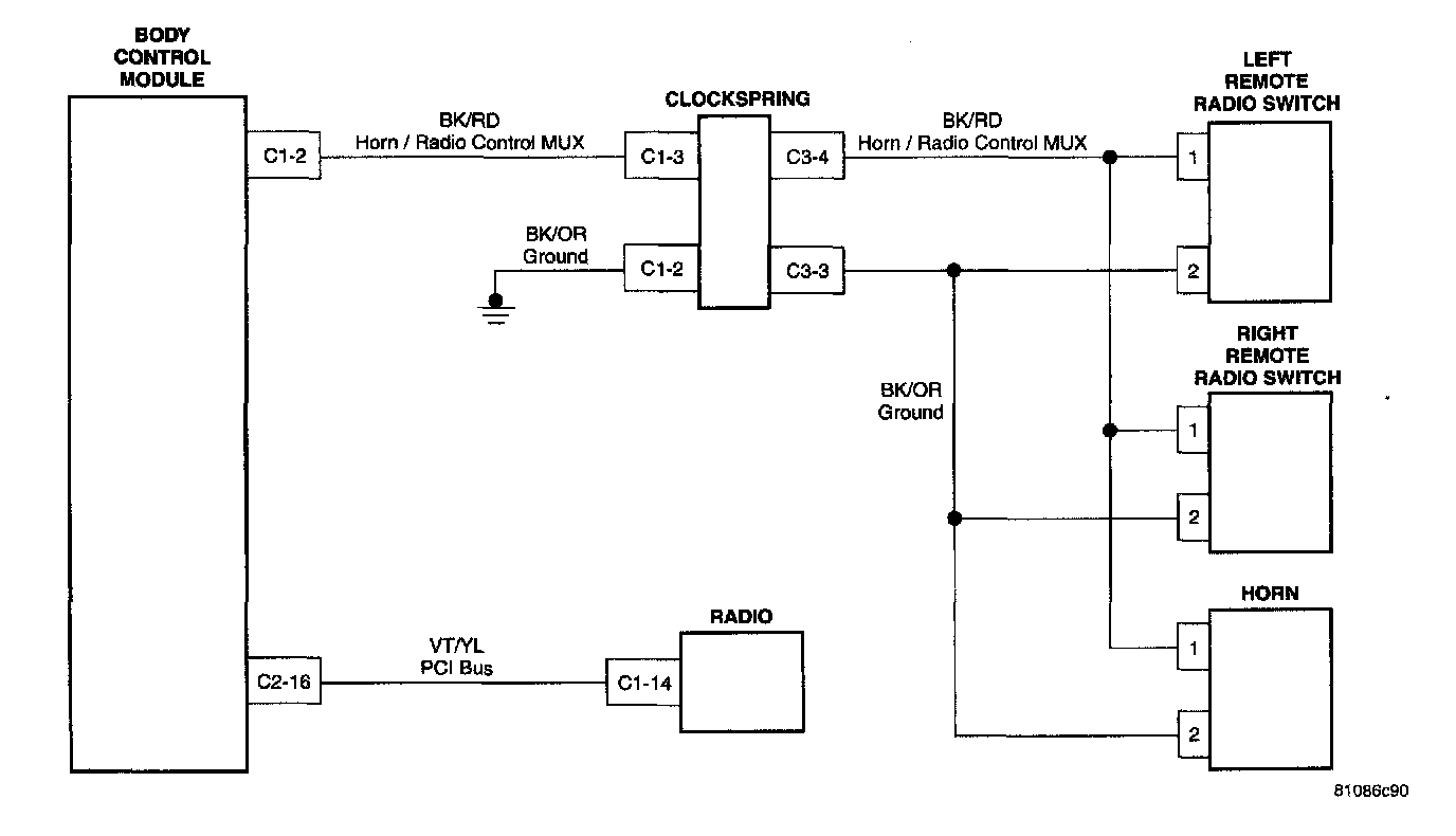
Remote Radio Controls:




Chime System:




Compass/Mini Trip Computer (CMTC):




Door Ajar:




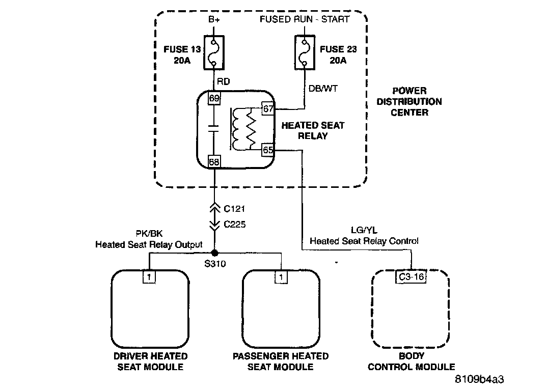
Heated Seat Relay:




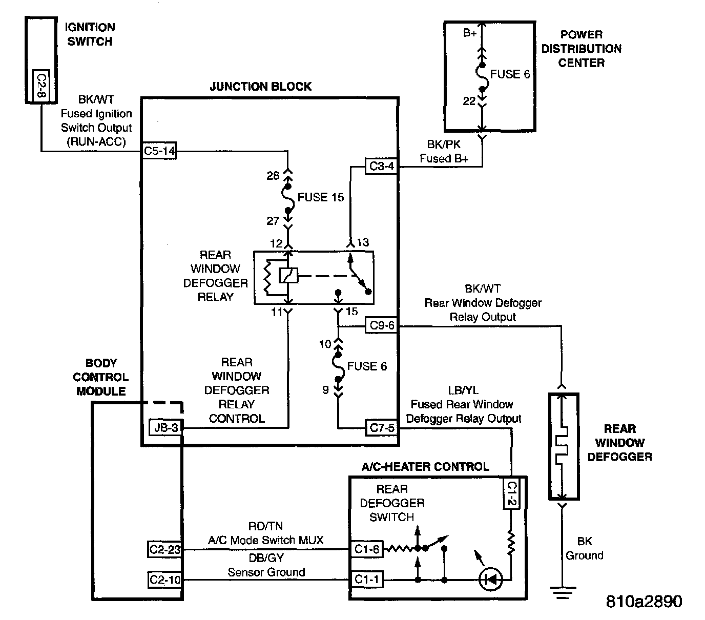
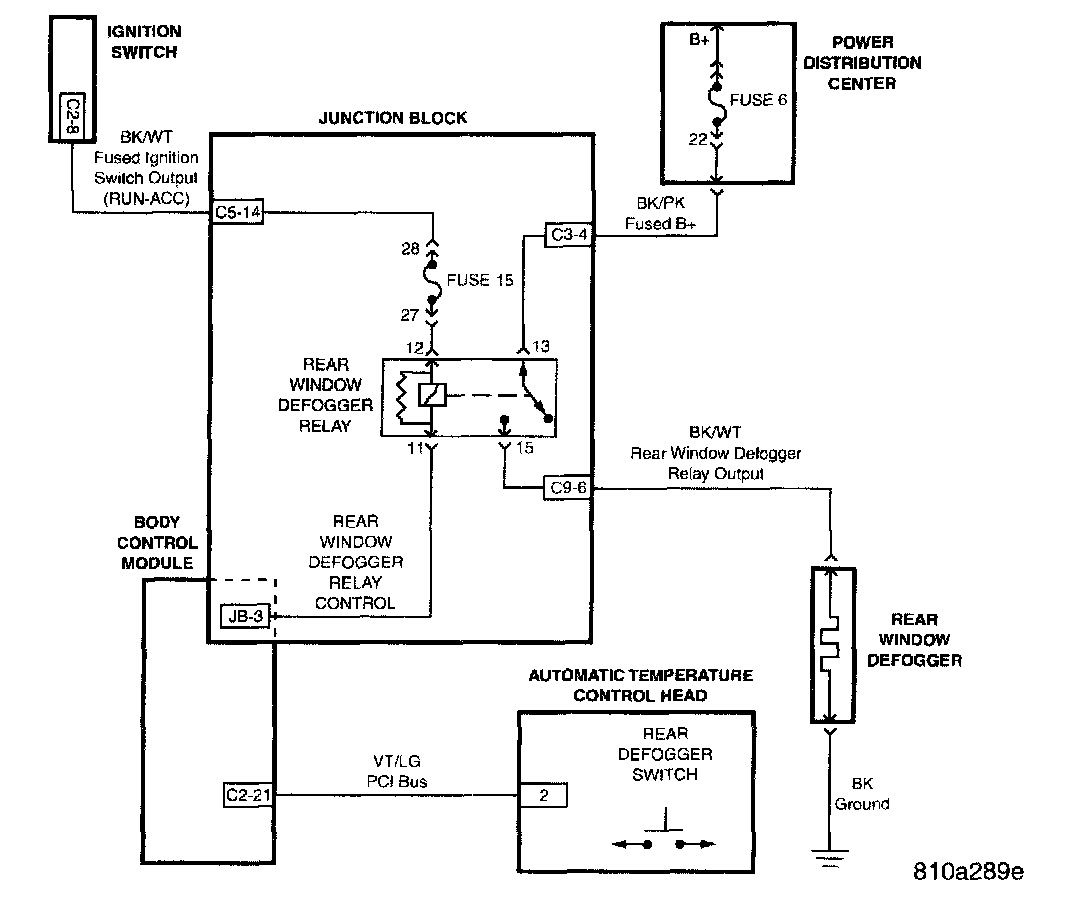
Rear Window Defogger (Automatic Temperature Control):




Rear Window Defogger (Manual Temperature Control):




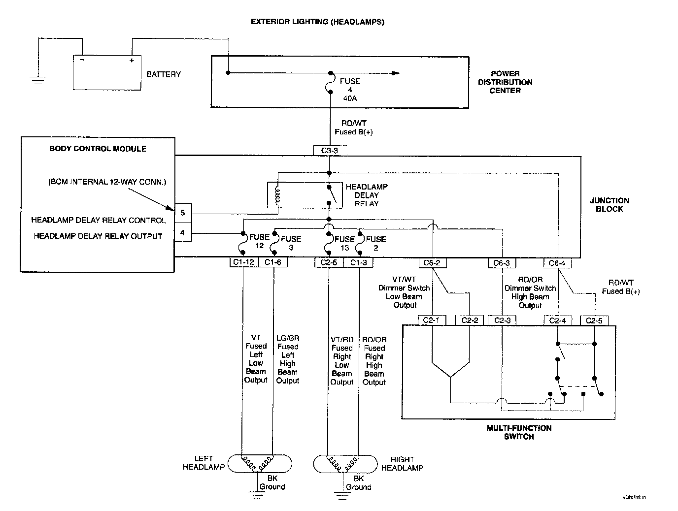
Exterior Lighting (Headlamps):




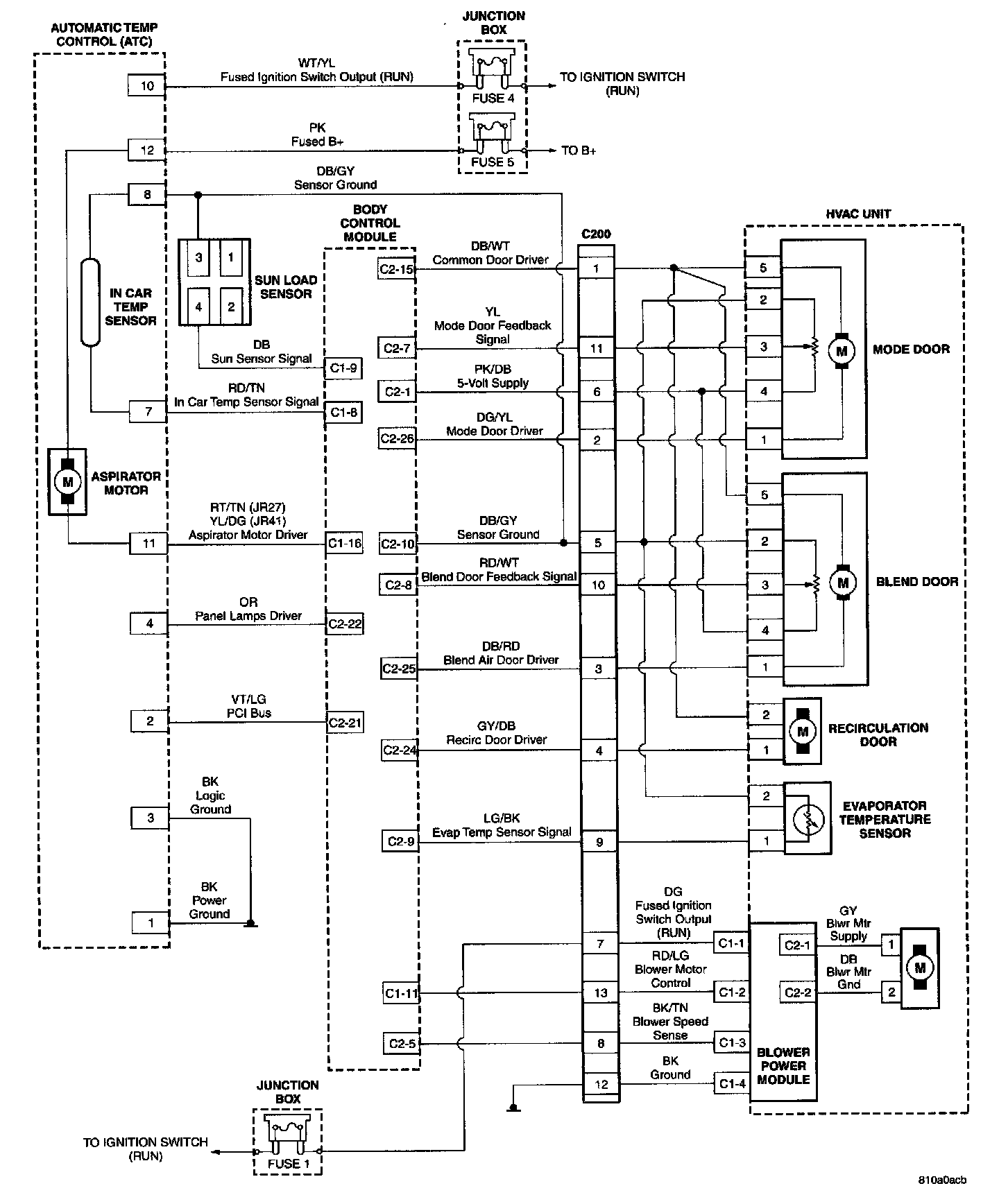
Automatic Temperature Control (ATC):




Manual Temperature Control (MTC):




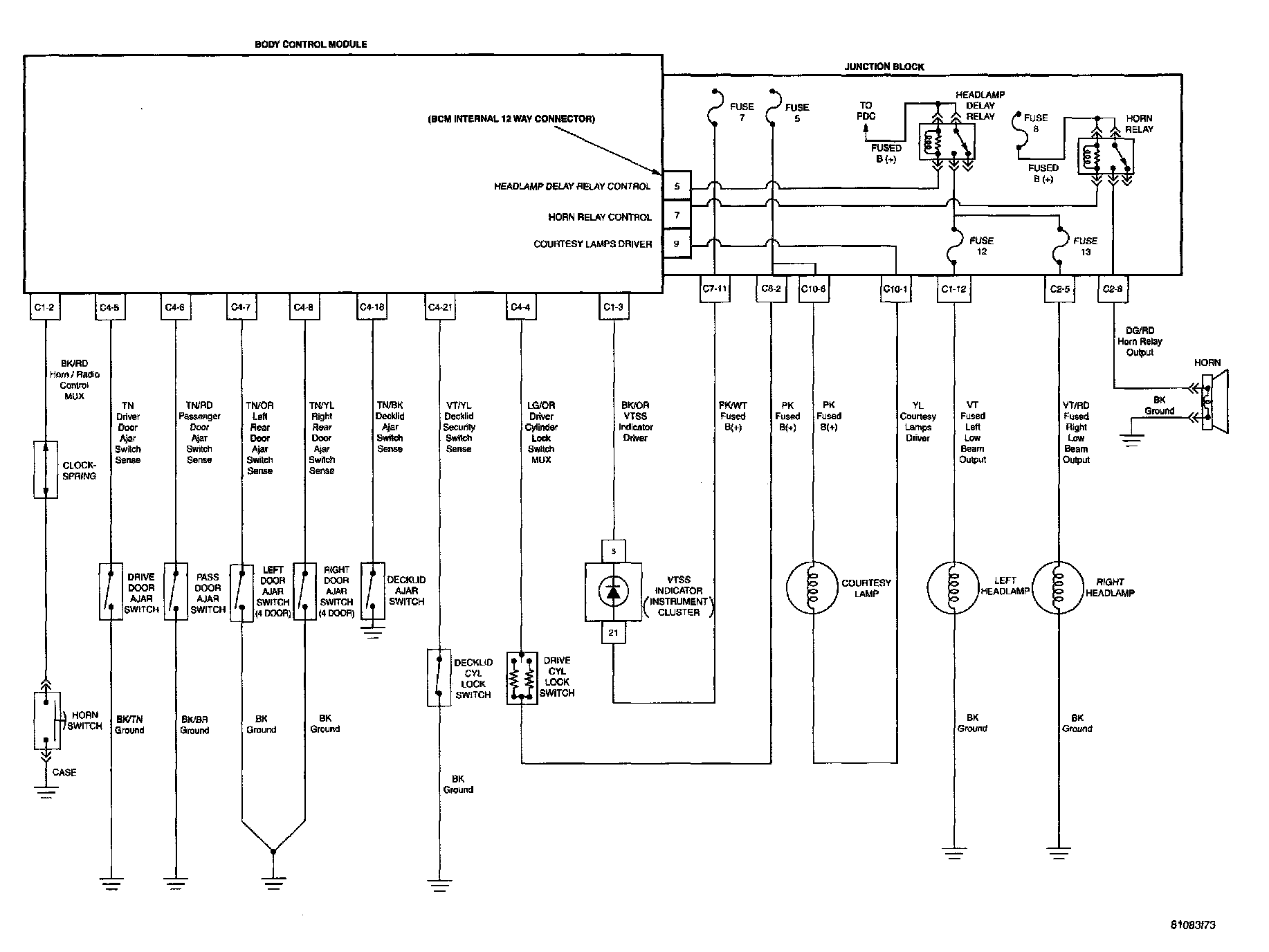
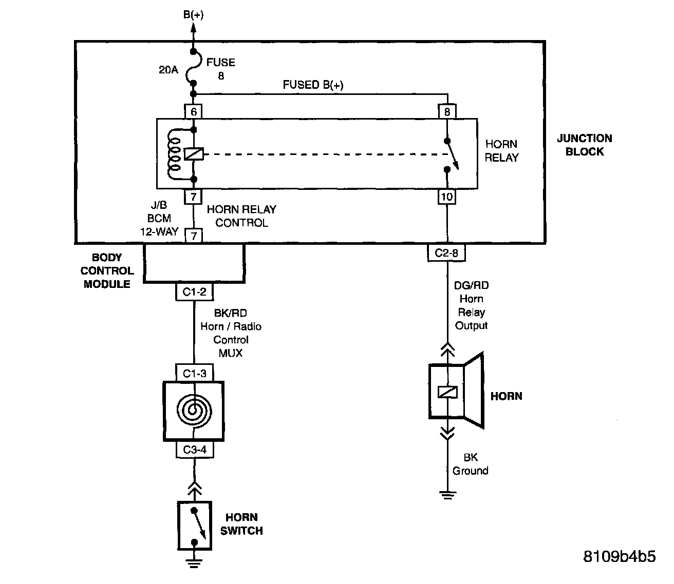
Horn System:




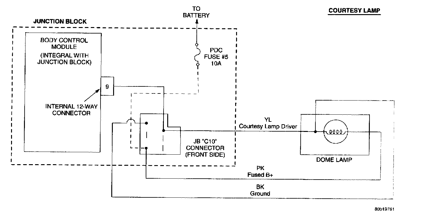
Courtesy Lamps:




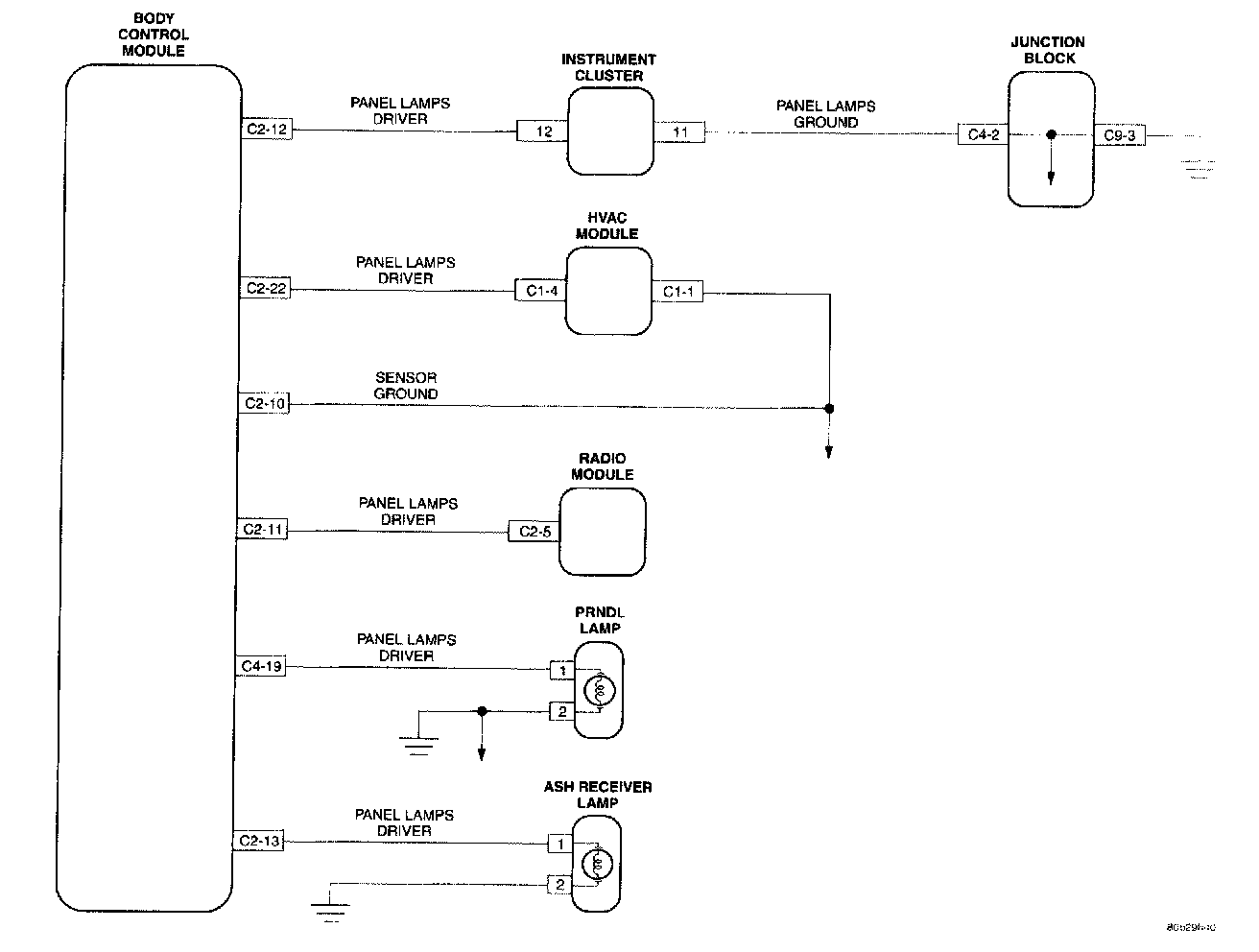
Panel Lamps:




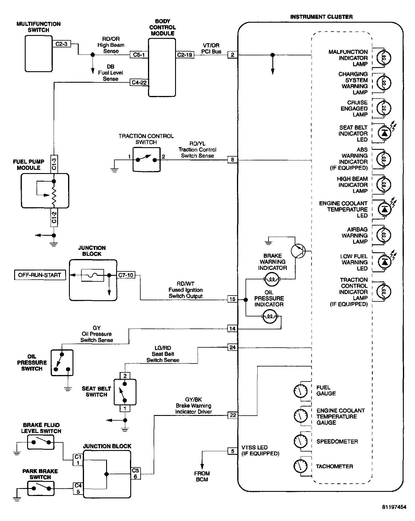
Mechanical Instrument Cluster:




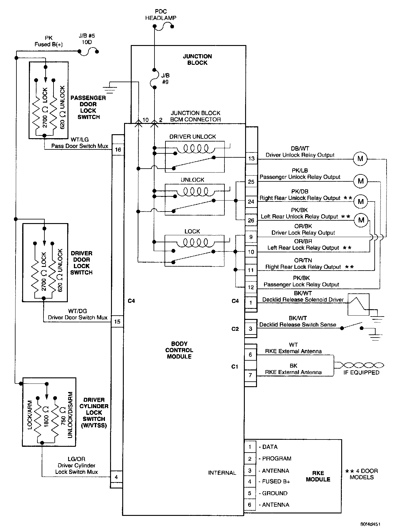
Power Door Locks/RKE:




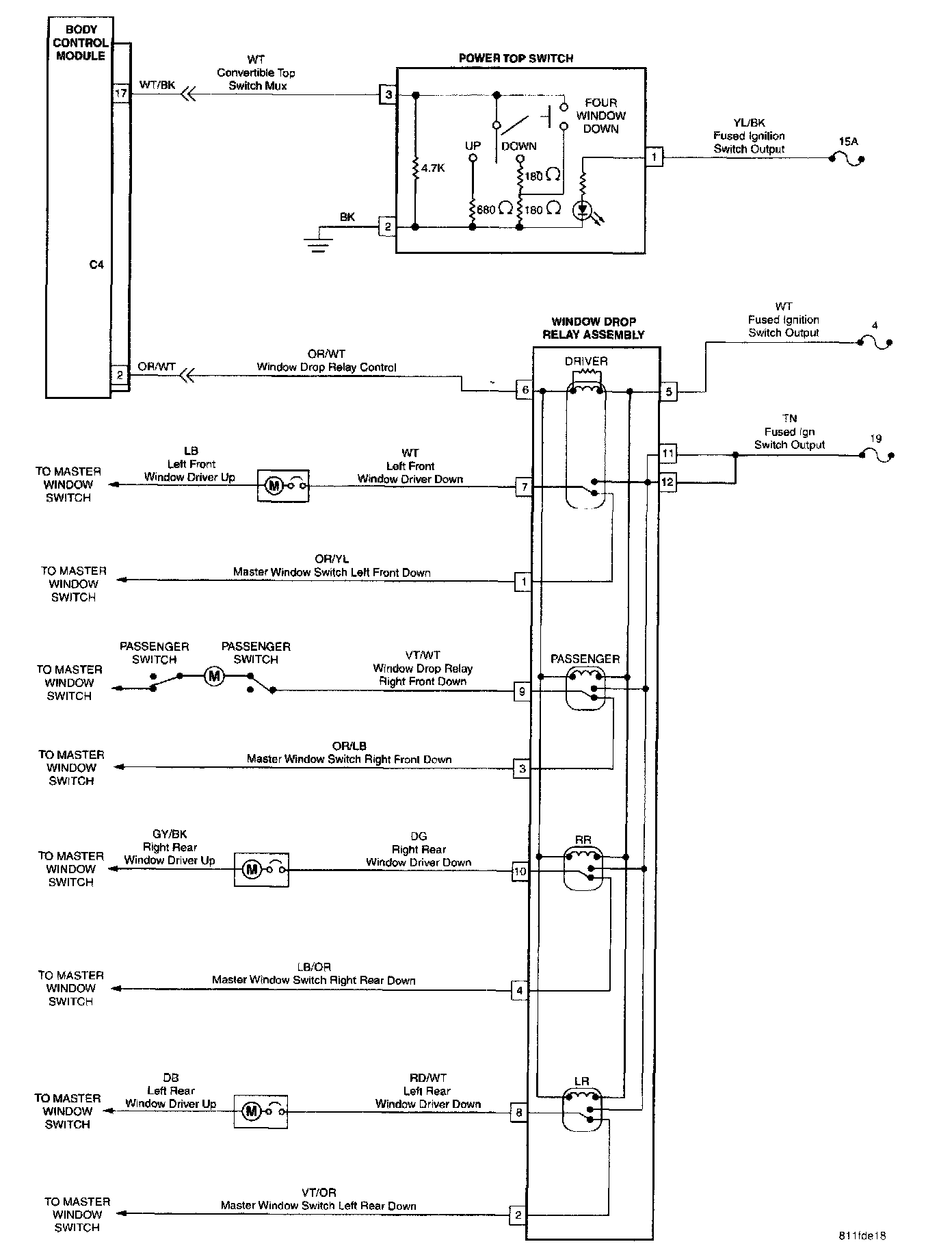
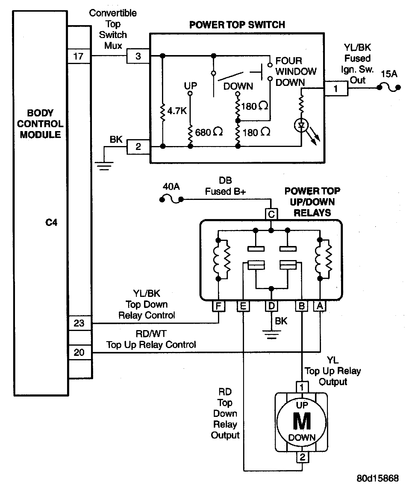
Convertible Top - Power Top:




Power Top/4 Window Drop:




PCI Bus Communication:




PCM Communication:




PCM Communication - NGC:




Vehicle Theft Security System:




Wiper Switch:




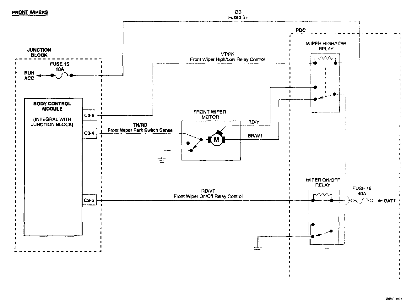
Front Wipers: