lemon-mirror:
Home >> Cadillac >> 1982 >> Seville V8-252 4.1L >> Repair and Diagnosis >> Powertrain Management >> Diagrams >> Ignition Controls

Ignition Controls

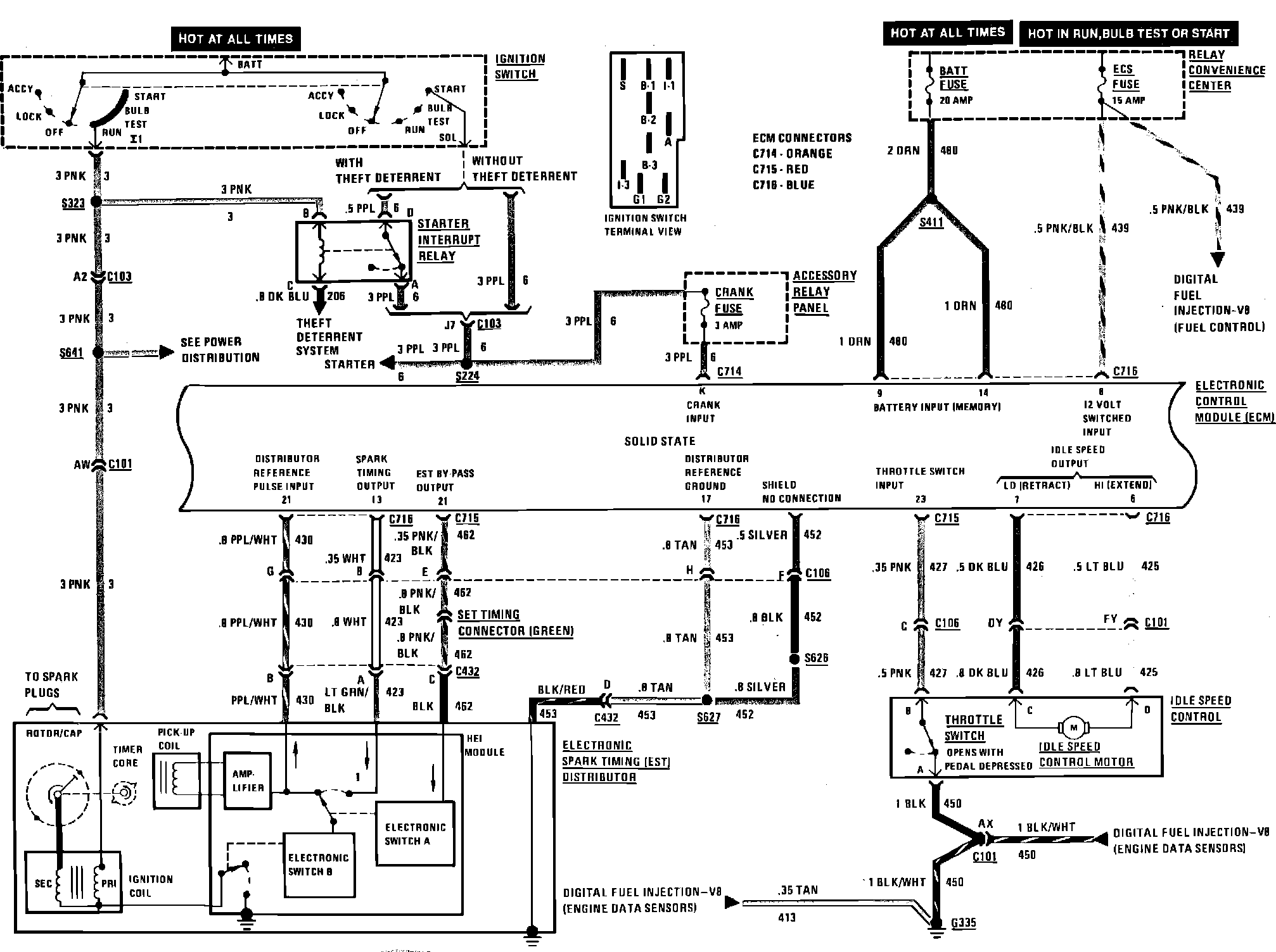
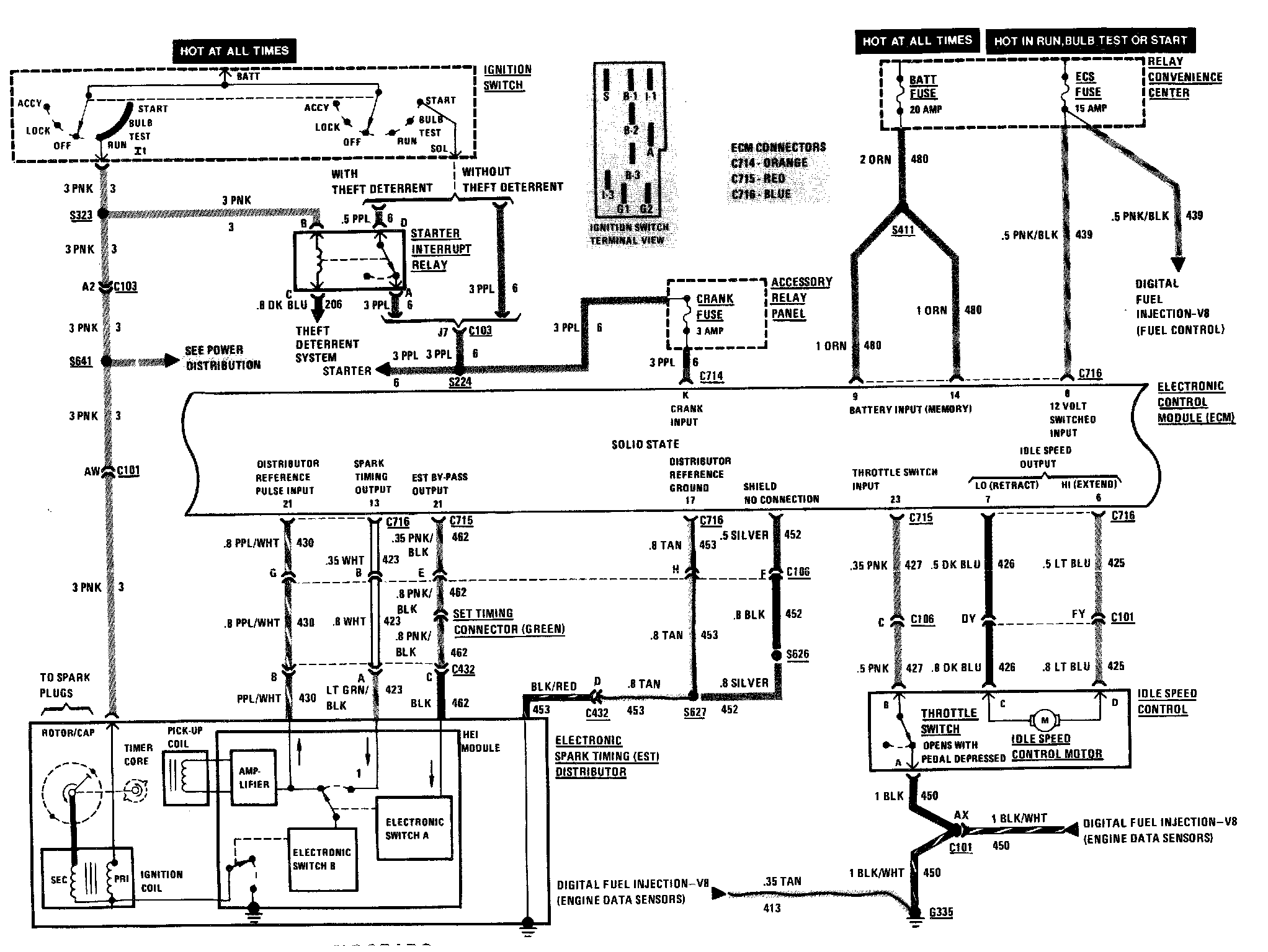
Digital Fuel Injection (Ignition, ECM Power, Idle Speed Control):