lemon-mirror:
Home >> Buick >> 2012 >> Verano L4-2.4L >> Repair and Diagnosis >> Diagrams >> Electrical Diagrams >> Body Control Systems

Body Control Systems




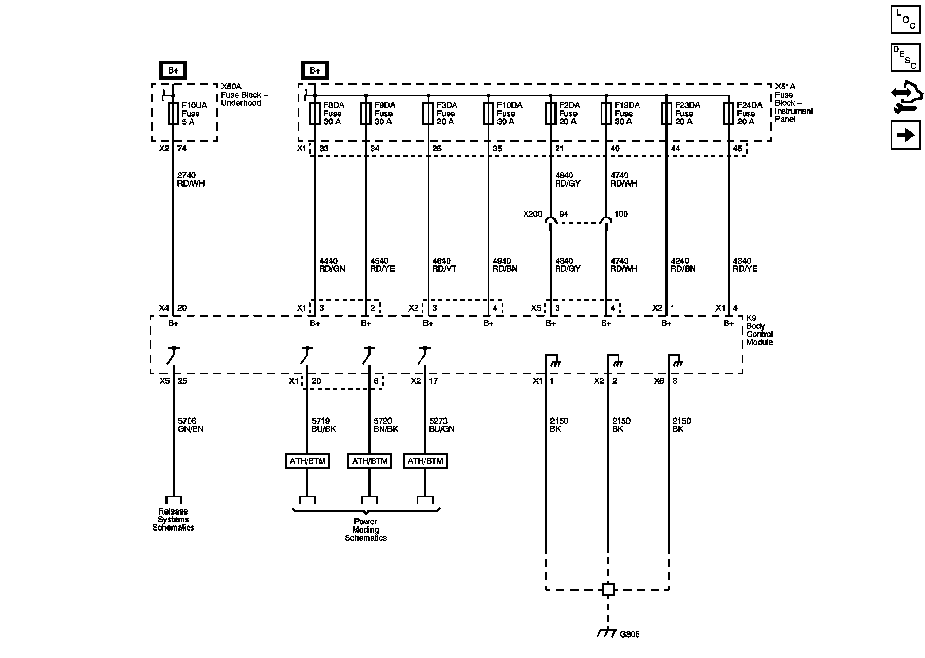
Body Control System Schematics

Power, Ground, and Subsystem References (1 of 4)






Subsystem References (2 of 4)






Subsystem References (3 of 4)






Subsystem References (4 of 4)